Trilocale in Vendita a Varazze, 350'000€, 70 m², arredato, con Box

Locali: 3
Bagni: 1
Camere: 2
Piano: 1°
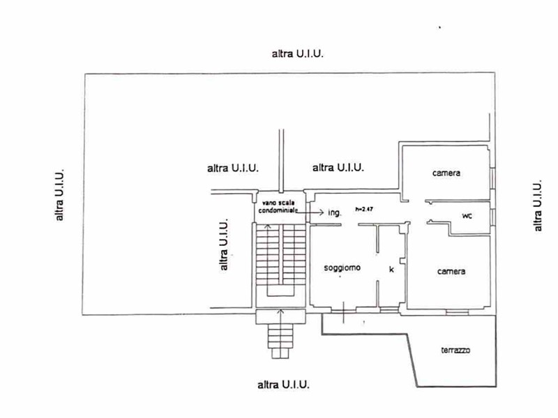
Proponiamo in vendita a Varazze, in Via Montegrappa, splendido trilocale completamente ristrutturato, pronto da vivere e curato in ogni dettaglio. L'appartamento si presenta in condizioni impeccabili, grazie a una recente ristrutturazione che ha valorizzato al massimo gli spazi interni, rendendoli moderni, funzionali e accoglienti. La distribuzione degli ambienti è ideale sia come prima casa che come seconda abitazione al mare, con spazi ben organizzati e un'ottima vivibilità complessiva. Elemento di grande valore è lo sfogo esterno vivibile, perfetto per momenti di relax all'aperto, pranzi e cene nella bella stagione. A completare la proprietà, un ampio box auto sotto casa, una vera rarità a Varazze, che garantisce comodità assoluta in ogni periodo dell'anno. Soluzione ideale per chi è alla ricerca di un immobile senza lavori da affrontare, in posizione comoda ai principali servizi e a breve distanza dal mare. Un'opportunità interessante anche in ottica investimento, grazie alle caratteristiche sempre più richieste sul mercato: ristrutturazione, spazio esterno e box di proprietà. Per maggiori informazioni, foto e per fissare una visita, non esitate a contattarci.

Condizioni economiche

Contratto: Vendita
Prezzo: 350'000€
Arredato: Si
Spese condominiali: 80€

Informazioni principali

Tipologia: Trilocale
Città: Varazze
Superficie: 70 m²
N° locali: 3
N° bagni: 1
N° Camere: 2
Piano:
Box: Si
Cucina: Angolo Cottura

Efficenza energetica

Classe energetica: 2015-E
Ipe: 188.05 kwm2
Climatizzatore: Si
Anno di costruzione: 1960
Riscaldamento: autonomo

Caratteristiche

Cantina: Si
Ascensore: Si
Videocitofono: Si

Dati inserzione

ID Offrocasa.com: 11035086
Data inserimento: 09/04/2026
Rif. Agenzia: Cod. rif 3308115VRG
Rif. Agenzia Cod. rif 3308115VRG

Gabetti

Prossima Apertura - - Varazze (Savona)
Richiedi Info dal form:
Accetto l'Informativa Privacy


Condividi

Gabetti

Prossima Apertura - - Varazze (Savona)

Trilocale in Vendita a Varazze, 350'000€, 70 m², arredato, con Box

Contatta