Appartamento in Affitto a Rubano, 1'200€, 80 m², con Box

Locali: 5
Camere: 2
Piano: 2
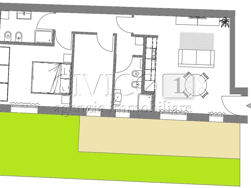
LOC1200 – SARMEOLA DI RUBANO Comfort abitativo assoluto Proponiamo in locazione NUOVO ed esclusivo appartamento BICAMERE con GIARDINO in Classe Energetica A4, arredato di cucina nuova. L’immobile, comodo a tutti i principali servizi anche raggiungibili a piedi, è inserito in una palazzina moderna servita da ascensore, composta da poche unità abitative. L’appartamento è così distribuito: -luminosa zona giorno open space con angolo cottura e accesso diretto al giardino privato tramite ampia vetrata scorrevole -pratica nicchia ad uso ripostiglio/lavanderia -due camere da letto -due bagni finestrati Completa la soluzione un garage fuori terra. L’elevato standard qualitativo garantisce ottime prestazioni energetiche in ogni stagione, grazie a: -involucro edilizio ad alte prestazioni -particolare attenzione ai ponti termici -infissi a basso emissivo -impianto di riscaldamento di ultima generazione Canone mensile: € 1.200,00 Spese condominiali e consumi molto contenuti !!: solo € 100,00/mese di spese condominiali comprensive di tutte le utenze ed i consumi domestici (energia elettrica, riscaldamento, acqua) Zone limitrofe: Villafranca Padovana, Limena, Bosco di Rubano, Villaguattera, Mestrino, Chiesanuova, Montà, Padova. Per maggiori informazioni: Agenzia di Rubano – Tel. 049 635135 Sito web: www.civico1.com

Condizioni economiche

Contratto: Affitto
Prezzo: 1'200€
Arredato: No
Spese condominiali: 100€

Informazioni principali

Tipologia: Appartamento
Città: Rubano
Vicinanze: Centrale
Superficie: 80 m²
N° locali: 5
N° Camere: 2
Piano: 2
Box: Si
Giardino: Si

Efficenza energetica

Classe energetica: A4
Ipe: 11 KWh/m2a
Anno di costruzione: 2026
Condizioni stabile: Nuovo
Riscaldamento: Autonomo

Caratteristiche

Ascensore: Si

Dati inserzione

ID Offrocasa.com: 11032193
Data inserimento: 03/04/2026
Rif. Agenzia: LOC1200
Rif. Agenzia LOC1200

CIVICO1 Agenzia Immobiliare

Via della Provvidenza, 83 - Rubano (Padova)
049.635135
Richiedi Info dal form:
Accetto l'Informativa Privacy


Condividi

CIVICO1 Agenzia Immobiliare

Via della Provvidenza, 83 - Rubano (Padova)

Appartamento in Affitto a Rubano, 1'200€, 80 m², con Box

Chiama
Contatta