Quadrilocale in Vendita a Nonantola, 336'000€, 139 m², con Box

Locali: 4
Camere: 2
Piano: t
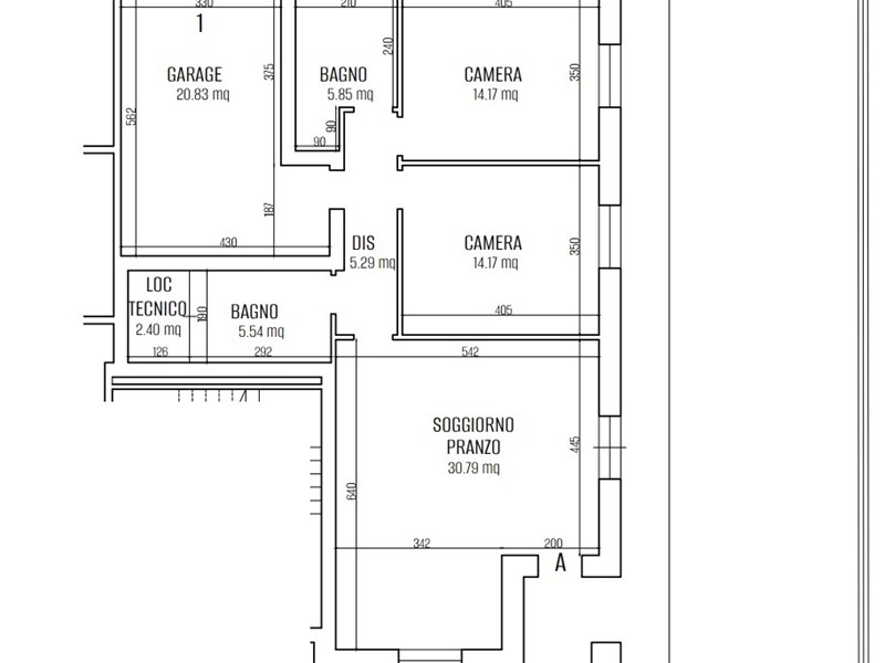
NONANTOLA Palazzina di nuova costruzione classe A4 APPARTAMENTO INGRESSO INDIPENDENTE In piccolo contesto appartamento al piano terra con GIARDINO, composto da: ampia zona giorno con cucina a vista con sfogo esterno su giardino, disimpegno, due camere da letto e doppi servizi. Garage al piano terra. Porta blindata, videocitofono, riscaldamento a PAVIMENTO con centralina e possibilità di regolare la temperatura dei singoli vani, aria condizionata con split, ricircolo dell’aria e deumidificazione predisposta, zanzariere, sanitari sospesi, caldaie autonome, pannelli fotovoltaici 3 Kwat. Consegna Settembre 2026

Condizioni economiche

Contratto: Vendita
Prezzo: 336'000€
Arredato: No

Informazioni principali

Tipologia: Quadrilocale
Città: Nonantola
Superficie: 139 m²
N° locali: 4
N° Camere: 2
Piano: t
Box: Si
Cucina: Angolo cottura
Giardino: Si

Efficenza energetica

Classe energetica: A4
Anno di costruzione: 2026
Condizioni stabile: Nuovo
Riscaldamento: Autonomo

Dati inserzione

ID Offrocasa.com: 11030522
Data inserimento: 02/04/2026
Rif. Agenzia: 3165
Rif. Agenzia 3165

Immobiliare 227 snc di Fabbri Stefano e C.

Via Emilia Centro 227 - Modena (MO)
059.7877147
Richiedi Info dal form:
Accetto l'Informativa Privacy


Condividi

Immobiliare 227 snc di Fabbri Stefano e C.

Via Emilia Centro 227 - Modena (MO)

Quadrilocale in Vendita a Nonantola, 336'000€, 139 m², con Box

Chiama
Contatta