Appartamento in Vendita a Bari, 485'000€, 180 m²

Locali: 5
Bagni: 2
Camere: 3
Piano: 1°
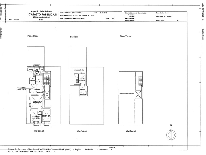
Affascinante appartamento, centralissimo, in un bel palazzo del 1939, con ascensore, posto in Via Calefati all'altezza di Via Roberto da Bari, a due isolati da Via Sparano,. L'appartamento ha l'innegabile fascino di una casa ristrutturata rispettando la struttura dell'epoca; il taglio è signorile; lo spazio, di mq. 180 ca. (mq 140 ca. a piano e mq. 40 ca. di soppalco), è un attraente susseguirsi di ambienti con le volte alte fino a mt. 5,50 ca.. Il grande ingresso ci accoglie nell'ampia zona pranzo, con una finestra affacciata su una piccola corte, mostra da subito lo stile di tutto l'appartamento. Il pavimento in parquet fa da filo conduttore di tutta la casa. Il salotto è un ambiente elegante, con le volte alte fino mt. 5,50 ca. valorizzate dalle cornici e dal gioco di colori, con una grande finestra affacciata sul vano scale. Due varchi gemelli, dagli eleganti profili lignei, esaltano la simmetria degli ambienti e collegano il salotto ad un piccolo ambiente (attualmente utilizzato come cabina armadio), e alla cucina affacciata sul cortile interno. Un altro splendido varco ci introduce nella zona notte, composta dalla camera da letto matrimoniale e dalla seconda camera da letto, entrambe con le volte alte, ed entrambe affacciate con due balconi su Via Calefati. Girando il ns. volto verso destra, scorgiamo Via Sparano ed uno scorcio della Camera di Commercio su Corso Cavour . Collegata con una scala in parquet, la zona del soppalco, con 1 camera da letto con finestra verso l'interno, un'altra cameretta ed il ripostiglio. I bagni sono due, oltre una zona lavanderia. La porta è blindata; il riscaldamento è autonomo; gli ambienti sono climatizzati; gli infissi sono in alluminio con doppio vetri e completi di persiane; le porte interne e gli arredi fissi sono di ebanisteria. L'appartamento ha la proprietà di una porzione della terrazza posta al terzo piano. Un appartamento particolarmente interessante e non comune, per il fascino degli ambienti e per la posizione nel cuore del quartiere murattiano. Per maggiori informazioni e per visitare l'immobile contattaci: Gabetti Franchising Centro Madonnella e Garibaldi - Luciana Lorusso Immobiliare - Tel. 080.5216726 e 342.1411856 Siamo a disposizione per una consulenza gratuita presso i nostri uffici a Bari in Via Calefati 142 in angolo con Via marchese di Montrone.

Condizioni economiche

Contratto: Vendita
Prezzo: 485'000€
Spese condominiali: 100€

Informazioni principali

Tipologia: Appartamento
Città: Bari
Superficie: 180 m²
N° locali: 5
N° bagni: 2
N° Camere: 3
Piano:
Cucina: Cucinotto

Efficenza energetica

Classe energetica:
Ipe: 0.00 kwm2
Climatizzatore: Si
Anno di costruzione: 1939
Riscaldamento: autonomo

Caratteristiche

Ascensore: Si

Dati inserzione

ID Offrocasa.com: 11029705
Data inserimento: 01/04/2026
Rif. Agenzia: Cod. rif 3306941VRG
Rif. Agenzia Cod. rif 3306941VRG

Gabetti

Via Calefati, 142 ang. Via Marchese di Montrone - - Bari
080/5216726
Richiedi Info dal form:
Accetto l'Informativa Privacy


Condividi

Gabetti

Via Calefati, 142 ang. Via Marchese di Montrone - - Bari

Appartamento in Vendita a Bari, 485'000€, 180 m²

Chiama
Contatta