Trilocale in Vendita a Catanzaro, 134'000€, 85 m²

Locali: 3
Bagni: 1
Camere: 2
Piano: 2
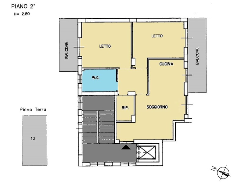
Catanzaro, via dei Conti Ruffo, in elegante contesto residenziale riservato a pochi passi dalla fermata della metropolitana di superficie, proponiamo in vendita appartamento posto al secondo piano in condominio munito di ascensore e area parcheggio recintata. L’immobile, molto luminoso grazie alla doppia esposizione, è dotato di ampi spazi esterni perimetrali accessibili da tutti gli ambienti. All’interno si compone da: ingresso su soggiorno living con angolo cottura, caminetto a parete e accesso al balcone, due comode camere da letto con balcone, ripostiglio e bagno finestrato con vasca. Dotato d'impianto di riscaldamento autonomo con caldaia a condensazione, infissi a taglio termico, portoncino blindato e posto auto riservato. Soluzione ideale per chi cerca una casa confortevole e di ottima qualità abitativa.

Condizioni economiche

Contratto: Vendita
Prezzo: 134'000€
Arredato: Non arredato
Spese condominiali: 50€
Libero: Si

Informazioni principali

Tipologia: Trilocale
Città: Catanzaro
Superficie: 85 m²
N° locali: 3
N° bagni: 1
N° Camere: 2
Piano: 2

Efficenza energetica

Classe energetica: G
Ipe: 175,00 kwh_m2
Anno di costruzione: 2003
Condizioni stabile: Buono
Riscaldamento: Autonomo

Caratteristiche

Ascensore: Si

Dati inserzione

ID Offrocasa.com: 11028650
Data inserimento: 31/03/2026
Rif. Agenzia: CZ-923
Rif. Agenzia CZ-923

CORRADINO REAL ESTATE

Via Corace 1 - Catanzaro
0961.34464
Richiedi Info dal form:
Accetto l'Informativa Privacy


Condividi

CORRADINO REAL ESTATE

Via Corace 1 - Catanzaro

Trilocale in Vendita a Catanzaro, 134'000€, 85 m²

Chiama
Contatta