Appartamento in Vendita a Bologna, 319'000€, 105 m², arredato

Locali: 5
Bagni: 2
Camere: 3
Piano: 1°
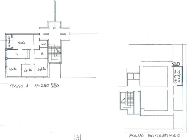
Mazzini-Fossolo . Via Pablo Neruda 1 . In contesto residenziale tranquillo e ben servito, proponiamo ampio e luminoso appartamento ideale per famiglie o per chi desidera spazi comodi e funzionali. L'immobile si compone di una sala spaziosa, perfetta per momenti di relax e convivialità, cucina abitabile separata, tre camere da letto ben dimensionate e due bagni . Completa la proprietà un terrazzo verandato, utilizzabile tutto l'anno come zona living aggiuntiva o spazio relax. A corredo dell'appartamento è presente una cantina ciclabile, comoda e funzionale. Possibilità di acquisto un autorimessa ad euro 28.000,00 La posizione strategica garantisce la vicinanza a scuole, servizi, mezzi pubblici e aree verdi, rendendo questa soluzione abitativa ideale per chi cerca comfort e qualità della vita a Bologna. In vendita ad ?319.000 Per maggiori informazioni ed appuntamenti rivolgersi ad Antonio Gregorio 3665008225

Condizioni economiche

Contratto: Vendita
Prezzo: 319'000€
Arredato: Si
Libero: Si

Informazioni principali

Tipologia: Appartamento
Città: Bologna
Superficie: 105 m²
N° locali: 5
N° bagni: 2
N° Camere: 3
Piano:
Cucina: Abitabile
Giardino: Comune

Efficenza energetica

Classe energetica:
Anno di costruzione: 0
Riscaldamento: centralizzato

Caratteristiche

Cantina: Si
Ascensore: Si

Dati inserzione

ID Offrocasa.com: 11027863
Data inserimento: 29/03/2026
Rif. Agenzia: APPVPN1VRG
Rif. Agenzia APPVPN1VRG

Gabetti

via Andrea Costa 226/E - Bologna
051/6153011
Richiedi Info dal form:
Accetto l'Informativa Privacy


Condividi

Gabetti

via Andrea Costa 226/E - Bologna

Appartamento in Vendita a Bologna, 319'000€, 105 m², arredato

Chiama
Contatta