Quadrilocale in Vendita a Roma, 325'000€, 116 m²

Locali: 4
Bagni: 1
Camere: 3
Piano: Terra
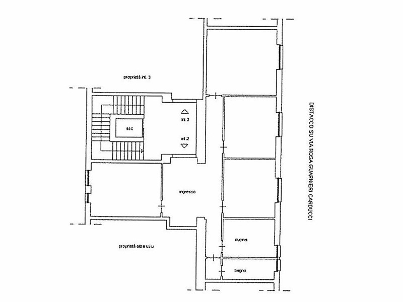
Colombo-Garbatella trilocale di ampia metratura Via Cristoforo Colombo, in prossimità della Regione Lazio e adiacente al quartiere Garbatella, in zona altamente servita e ben collegata, proponiamo la vendita di un appartamento quadrilocale di ampia metratura, posto al piano terra di uno stabile con rivestimenti esterni in cortina e dotato di servizio di portineria intera giornata. L'immobile si presenta completamente da ristrutturare, offrendo ampie possibilità di personalizzazione degli spazi interni. La composizione attuale prevede un ingresso, un salone, cucina abitabile, tre camere da letto e un bagno. L'assenza di spazi esterni è compensata dalla generosa metratura e dalla funzionalità degli ambienti, rendendo l'immobile ideale per chi desidera realizzare una soluzione abitativa su misura. Il fabbricato si presenta in buone condizioni generali ed è inserito in un contesto urbano dinamico e ricco di servizi, tra cui attività commerciali, scuole e mezzi di trasporto. Il riscaldamento è centralizzato. La posizione su Via Cristoforo Colombo garantisce collegamenti rapidi sia verso il centro città che verso il Grande Raccordo Anulare, rendendo la soluzione interessante sia come abitazione principale sia come investimento. Prezzo richiesto euro 325.000 con classe energetica F Ipe 1867 kWh/m2 anno. Per ulteriori informazioni e per prenotare una visita contattare la nostra agenzia al numero 0681150210.

Condizioni economiche

Contratto: Vendita
Prezzo: 325'000€
Arredato: No
Spese condominiali: 100€
Libero: Si

Informazioni principali

Tipologia: Quadrilocale
Città: Roma
Superficie: 116 m²
N° locali: 4
N° bagni: 1
N° Camere: 3
Piano: Terra
Cucina: Abitabile
Giardino: Comune

Efficenza energetica

Classe energetica: 2015-F
Ipe: 1867.00 kwm2
Anno di costruzione: 1954
Riscaldamento: centralizzato

Caratteristiche

Ascensore: Si

Dati inserzione

ID Offrocasa.com: 11026535
Data inserimento: 27/03/2026
Rif. Agenzia: VS07/26VRG
Rif. Agenzia VS07/26VRG

Soluzioni Immobiliari srl

Via Alessio Baldovinetti 97 - Roma
0681150214
Richiedi Info dal form:
Accetto l'Informativa Privacy


Condividi

Soluzioni Immobiliari srl

Via Alessio Baldovinetti 97 - Roma

Quadrilocale in Vendita a Roma, 325'000€, 116 m²

Chiama
Contatta