Bilocale in Vendita a Piacenza, 115'000€, 60 m², arredato

Locali: 2
Bagni: 1
Camere: 1
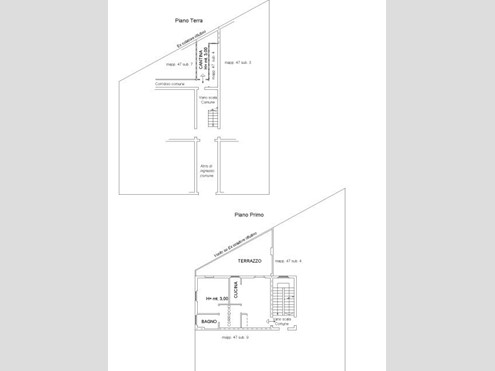
Bilocale ristrutturato con terrazzo abitabile - Ottimo investimento In zona tranquilla e ben abitata, proponiamo in vendita grazioso bilocale completamente arredato, situato al primo piano di una piccola palazzina di sole tre unità. L'appartamento, ristrutturato nel 2015, si distingue per ambienti curati e funzionali: accogliente soggiorno con cucina open space, camera matrimoniale, bagno e splendido terrazzo ampio e vivibile, ideale per momenti di relax all'aperto. Le finiture comprendono parquet in tutti gli ambienti (ad eccezione del bagno), infissi nuovi in PVC con doppio vetro, aria condizionata e riscaldamento autonomo, garantendo comfort ed efficienza energetica. Le spese condominiali sono contenute. Completa la proprietà una cantina. Soluzione perfetta sia come prima casa sia come investimento, con possibilità di acquisto a reddito. Contesto riservato e ben tenuto.

Condizioni economiche

Contratto: Vendita
Prezzo: 115'000€
Arredato: Si
Libero: Si

Informazioni principali

Tipologia: Bilocale
Città: Piacenza
Superficie: 60 m²
N° locali: 2
N° bagni: 1
N° Camere: 1
Cucina: Abitabile

Efficenza energetica

Classe energetica:
Anno di costruzione: 0

Dati inserzione

ID Offrocasa.com: 11024303
Data inserimento: 25/03/2026
Rif. Agenzia: Cod. rif 3305436VRG
Rif. Agenzia Cod. rif 3305436VRG

Gruppo CPiace Srl

Piazzale Medaglie D'Oro 7 - Piacenza
0523455863
Richiedi Info dal form:
Accetto l'Informativa Privacy


Condividi

Gruppo CPiace Srl

Piazzale Medaglie D'Oro 7 - Piacenza

Bilocale in Vendita a Piacenza, 115'000€, 60 m², arredato

Chiama
Contatta