Appartamento in Vendita a Itala, 118'000€, 144 m²

Locali: 5
Bagni: 2
Camere: 3
Piano: Terra
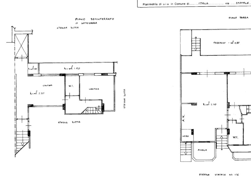
Itala Via Roma Complesso Golfo del Capo, proponiamo in vendita un interessante appartamento con ingresso indipendente, ideale sia come abitazione principale che come investimento. L'immobile si sviluppa su due livelli collegati internamente, offrendo spazi ampi e ben distribuiti: piano principale con luminoso salone con zona cottura, due camere da letto, bagno ed ampia veranda, perfetta per momenti di relax all'aperto; piano seminterrato, con doppio accesso interno ed indipendente, composto da due grandi camere e bagno. Questa configurazione rende l'immobile particolarmente versatile, adatto anche per ospitare due nuclei familiari o per creare una zona ospiti completamente autonoma. Completa la proprietà un posto auto in garage. Soluzione ideale per chi cerca comfort, indipendenza e funzionalità in un contesto tranquillo e riservato. Per maggiori informazioni o per fissare una visita, non esitare a contattarci.

Condizioni economiche

Contratto: Vendita
Prezzo: 118'000€
Arredato: No

Informazioni principali

Tipologia: Appartamento
Città: Itala
Superficie: 144 m²
N° locali: 5
N° bagni: 2
N° Camere: 3
Piano: Terra
Posto auto: Si
Cucina: Angolo Cottura

Efficenza energetica

Classe energetica:
Anno di costruzione: 1995
Riscaldamento: autonomo

Caratteristiche

Cantina: Si

Dati inserzione

ID Offrocasa.com: 11024279
Data inserimento: 25/03/2026
Rif. Agenzia: 0681-71VRG
Rif. Agenzia 0681-71VRG

Grimaldi Immobiliare

Va Catania 198 - Messina
090/2931748
Richiedi Info dal form:
Accetto l'Informativa Privacy


Condividi

Grimaldi Immobiliare

Va Catania 198 - Messina

Appartamento in Vendita a Itala, 118'000€, 144 m²

Chiama
Contatta