Monolocale in Vendita a San Benedetto del Tronto, 168'300€, 41 m²

Locali: 1
Bagni: 1
Camere: 1
Piano: Terra
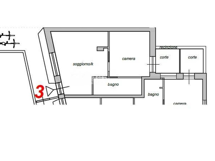
L'agenzia Re Casa Immobiliare propone in vendita bilocale sito a San Benedetto del Tronto, zona centrale e servita, a 500 mt dal mare e 100 mt dall'Ospedale, vicinissima ai principali servizi. BIlocale al piano terra di 41 mq, con ingresso autonomo composto da ingresso su soggiorno con cucina open-space, una camera da letto matrimoniale, un bagno con doccia con areazione forzata, e corte esclusiva di 20 mq. La parte acquirente potrà se richiesto apportare modifiche inerenti la distribuzione interna degli spazi, secondo le proprie necessità, scelta dei materiali ed eventuali personalizzazioni. Attualmente in fase di totale ristrutturazione, rappresenta un'opportunità unica per chi desidera acquistare una nuova casa dalle finiture moderne e di qualità, ed altra efficienza energetica Situato al piano terra di una piccola palazzina, l'immobile è stato costruito negli anni '80 ed in corso la totale ristrutturazione per rispondere alle esigenze attuali, consegna entro fine 2026. Il comodo ingresso, lo rende adatto anche a persone con mobilità ridotta. Possibilità di acquistare a parte garage, posto auto e fondaco. Grazie alla sua posizione strategica e alla vicinanza a tutti i servizi, negozi e mezzi di trasporto, ospedale, rappresenta una soluzione ideale per chi cerca un appartamento funzionale e comodo da vivere, per professionisti o turisti. Non perdere l'occasione di acquistare un appartamento moderno e di qualità in una delle zone più ricercate di San Benedetto del Tronto.

Condizioni economiche

Contratto: Vendita
Prezzo: 168'300€
Arredato: Non arredato
Libero: Si

Informazioni principali

Tipologia: Monolocale
Città: San Benedetto del Tronto
Superficie: 41 m²
N° locali: 1
N° bagni: 1
N° Camere: 1
Piano: Terra
Esposizione: Nord

Efficenza energetica

Classe energetica: NA - Non Applicabile
Anno di costruzione: 1980

Caratteristiche

Ascensore: Si

Dati inserzione

ID Offrocasa.com: 11022963
Data inserimento: 24/03/2026
Rif. Agenzia: 9711
Rif. Agenzia 9711

Re Casa Immobiliare

Via San Francesco D'Assisi n. 13 b/c - San Benedetto del Tronto (Ascoli Piceno)
0735365467
Richiedi Info dal form:
Accetto l'Informativa Privacy


Condividi

Re Casa Immobiliare

Via San Francesco D'Assisi n. 13 b/c - San Benedetto del Tronto (Ascoli Piceno)

Monolocale in Vendita a San Benedetto del Tronto, 168'300€, 41 m²

Chiama
Contatta