Bilocale in Vendita a Arzano, 155'000€, 80 m²

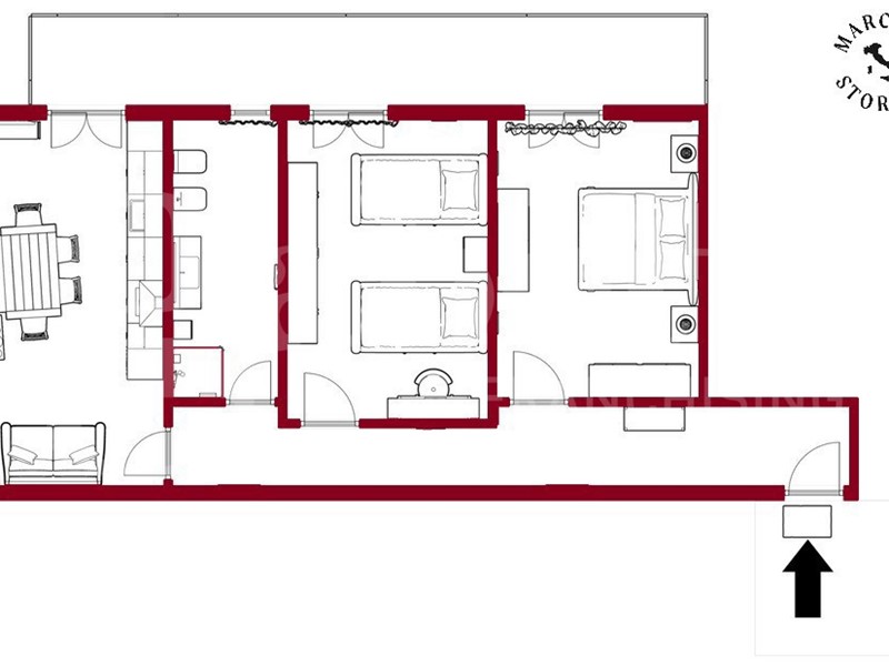
Locali: 2
Bagni: 1
Camere: 2
Piano: 3°
Proponiamo in vendita un appartamento ad uso abitativo nel Comune di Arzano. L'immobile, situato in una zona centralissima con alta densità pedonale e molte attività commerciali nelle vicinanze (via Napoli incrocio via Pecchia), offre 2 ampie camere da letto, 1 bagno, una cucina abitabile, per un totale di 80 mq. catastali oltre ad un balcone con veduta sulle principali vie circostanti. L'abitazione si trova ad un piano medio di uno stabile in cemento armato construito negli anni '70 e i suoi ambienti interni sono stati oggetto di una recente ristrutturazione (anno 2022) che gli ha conferito un'atmosfera rilassante e moderna. Attualmente locata con contratto agevolato fino al 30/01/2027, rappresenta un ottimo investimento sia per la posizione strategica sia per la rendita annua lorda di ? 6.000,00 ed è deale sia per chi cerca una soluzione abitativa comoda e ben servita, sia per chi desidera un investimento sicuro e redditizio. Contattaci per maggiori informazioni e per organizzare una visita. WhatsApp 3898207289 CODICE 3300579

Condizioni economiche

Contratto: Vendita
Prezzo: 155'000€
Arredato: No
Spese condominiali: 30€

Informazioni principali

Tipologia: Bilocale
Città: Arzano
Superficie: 80 m²
N° locali: 2
N° bagni: 1
N° Camere: 2
Piano:
Cucina: Abitabile

Efficenza energetica

Classe energetica: 2015-G
Ipe: 179.00 kwm2
Climatizzatore: Si
Anno di costruzione: 1969

Dati inserzione

ID Offrocasa.com: 11022414
Data inserimento: 22/03/2026
Rif. Agenzia: Cod. rif 3300579VRG
Rif. Agenzia Cod. rif 3300579VRG

Gabetti

Via Napoli 70 - Arzano (Napoli)
0817318456
Richiedi Info dal form:
Accetto l'Informativa Privacy


Condividi

Gabetti

Via Napoli 70 - Arzano (Napoli)

Bilocale in Vendita a Arzano, 155'000€, 80 m²

Chiama
Contatta