Quadrilocale in Vendita a Siena, 250'000€, 78 m²

Locali: 4
Bagni: 1
Camere: 2
Piano: Terra
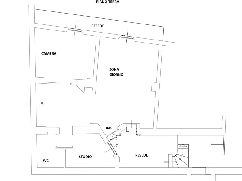
Rif. S2639 - Siena - Viale Cavour - Restaurato indipendente con resede - A ridosso del centro storico in posizione panoramica e silenziosa con tutti i servizi, appartamento di 78 mq catastali al piano terra con ingresso indipendente da resede pavimentato di proprietà esclusiva di circa 8 mq. Internamente è composto da ampia zona giorno open space con angolo cottura ed accesso ad altro resede esclusivo di circa 6 mq, camera matrimoniale, cameretta/studio e bagno. Completamente restaurato 2026 incluso caldaia e infissi. Perfetto stato di manutenzione. Spese condominiali irrilevanti, libero su più lati e tetto di proprietà. Ape in attesa di certificazione - ? 250.000 Vorresti acquistare o vendere casa? chiamaci allo 0577 43600. Visita il nostro sito Toscanaestates.it

Condizioni economiche

Contratto: Vendita
Prezzo: 250'000€
Arredato: No
Libero: Si

Informazioni principali

Tipologia: Quadrilocale
Città: Siena
Superficie: 78 m²
N° locali: 4
N° bagni: 1
N° Camere: 2
Piano: Terra
Cucina: Angolo Cottura
Giardino: Privato

Efficenza energetica

Classe energetica:
Anno di costruzione: 0
Riscaldamento: autonomo

Dati inserzione

ID Offrocasa.com: 11020871
Data inserimento: 20/03/2026
Rif. Agenzia: Cod. rif 3304355VRG
Rif. Agenzia Cod. rif 3304355VRG

Gabetti

strada Massetana Romana 44 - Siena
0577/43600
Richiedi Info dal form:
Accetto l'Informativa Privacy


Condividi

Gabetti

strada Massetana Romana 44 - Siena

Quadrilocale in Vendita a Siena, 250'000€, 78 m²

Chiama
Contatta