Trilocale in Vendita a Pesaro, 210'000€, 90 m², con Box

Locali: 3
Bagni: 2
Camere: 2
Piano: 2°
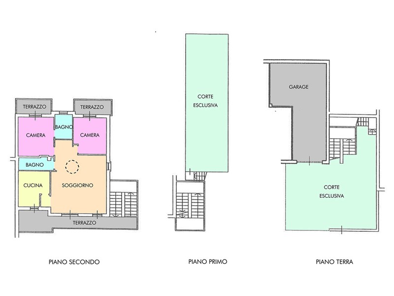
IN ESCLUSIVA! PESARO - In una tranquilla zona residenziale, circondata dal verde, proponiamo in vendita un appartamento situato al secondo piano di una piccola palazzina. L'immobile è composto da un ampio soggiorno con accesso diretto al terrazzo, cucina separata, due camere da letto e doppi servizi. Gli spazi sono ben distribuiti, luminosi e accoglienti, ideali sia per una famiglia che per una giovane coppia in cerca di comfort e tranquillità. Completano la proprietà una corte esclusiva, perfetta per momenti di relax all'aperto, e un comodo garage privato. La posizione è ottimale: lontano dal traffico ma ben collegata ai principali servizi. Contattaci per maggiori informazioni o per fissare una visita! C.E. in richiesta. Rif. G157/2

Condizioni economiche

Contratto: Vendita
Prezzo: 210'000€
Libero: Si

Informazioni principali

Tipologia: Trilocale
Città: Pesaro
Superficie: 90 m²
N° locali: 3
N° bagni: 2
N° Camere: 2
Piano:
Box: Si
Cucina: Abitabile
Giardino: Privato

Efficenza energetica

Classe energetica:
Anno di costruzione: 0

Dati inserzione

ID Offrocasa.com: 11019889
Data inserimento: 19/03/2026
Rif. Agenzia: G157/2--VRG
Rif. Agenzia G157/2--VRG

Gabetti

Via Mercato 79 - Gradara (Pesaro e Urbino)
0541.1612556
Richiedi Info dal form:
Accetto l'Informativa Privacy


Condividi

Gabetti

Via Mercato 79 - Gradara (Pesaro e Urbino)

Trilocale in Vendita a Pesaro, 210'000€, 90 m², con Box

Chiama
Contatta