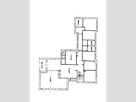
Appartamento in Vendita a Rovato, 1800 m², arredato, con Box

Locali: 5
Bagni: 5
Camere: 6
Piano: Terra
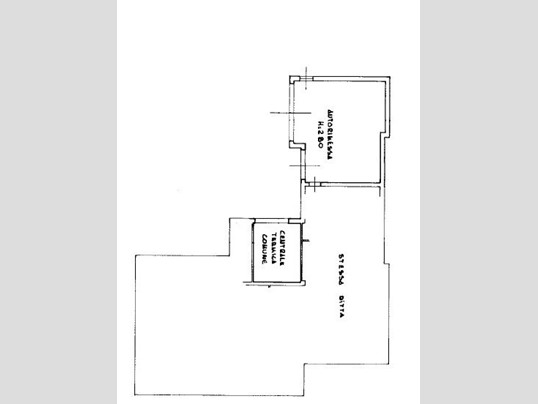
Splendida Villa Singola , situato nel cuore di Rovato, una delle località più ambite della provincia di Brescia. Con una superficie di 2600 mq ( circa 600 di abitazione tra piano terra ed interrato oltre autorimessa ,1000 di giardino e 970 mq di lotto edificabile , questa proprietà offre ampi spazi e un design moderno ed elegante. la Villa vanta una posizione strategica, vicino a servizi essenziali rendendo la vita quotidiana comoda e senza stress. L'ampio spazio interno permette di godere di una luminosa zona giorno, ideale per accogliere amici e familiari, e di 6 spaziose camere da letto, di cui 3 con il proprio bagno privato per garantire privacy e comfort. Gli interni sono rifiniti con materiali di alta qualità e dettagli di design per il tempo dell'epoca di costruzione , creando un'atmosfera accogliente e raffinata. Inoltre, la posizione centrale di Rovato offre la possibilità di godere di tutti i comfort della vita urbana, tra negozi, ristoranti e servizi, pur mantenendo la tranquillità e la privacy di una residenza esclusiva. Questa proprietà rappresenta un'opportunità unica per chi cerca un appartamento di lusso in una delle zone più ambite della provincia di Brescia. Contattami oggi per organizzare una visita e scoprire di più su questa straordinaria residenza.

Condizioni economiche

Contratto: Vendita
Prezzo: Prezzo su richiesta
Arredato: Si
Libero: Si

Informazioni principali

Tipologia: Appartamento
Città: Rovato
Superficie: 1800 m²
N° locali: 5
N° bagni: 5
N° Camere: 6
Piano: Terra
Box: Si
Cucina: Abitabile
Giardino: Privato

Efficenza energetica

Classe energetica:
Anno di costruzione: 1980
Riscaldamento: autonomo

Caratteristiche

Cantina: Si

Dati inserzione

ID Offrocasa.com: 11018701
Data inserimento: 18/03/2026
Rif. Agenzia: Cod. rif 3303534VRG
Rif. Agenzia Cod. rif 3303534VRG

Gabetti

Prossima Apertura - - Rovato (Brescia)
339.5955437
Richiedi Info dal form:
Accetto l'Informativa Privacy


Condividi

Gabetti

Prossima Apertura - - Rovato (Brescia)

Appartamento in Vendita a Rovato, 1800 m², arredato, con Box

Chiama
Contatta