Appartamento in Vendita a La Spezia, 310 m²

Locali: 6
Bagni: 4
Piano: 3°
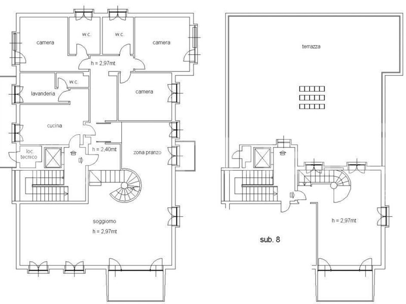
Immerso nella suggestiva cornice di La Spezia, dietro Piazza Verdi, si erge un appartamento di rara eleganza e spaziosità. Con i suoi 310 mq disposti su due livelli, questo immobile offre un'esperienza abitativa unica. Al primo livello, un triplo salone luminoso e accogliente con camino e balcone loggiato con vista sui giardini, una sala da pranzo affacciata su un balcone, una cucina ampia e funzionale con balcone e con zona lavanderia e un bagno di servizio. La zona notte vanta tre camere matrimoniali e due bagni finestrati, garantendo comfort e privacy. Salendo al piano superiore tramite un elegante scala di design, si accede a un ampio vano con zona relax, una terrazza con vista mare e una camera matrimoniale con bagno privato e una terrazza di ampia metratura. L'appartamento vanta rifiniture di lusso, impianto di climatizzazione, parquet, infissi nuovi, tapparelle elettriche, portoni blindati e impianto di allarme. L'immobile è su due livelli collegati da scala interna, dotato di doppi ingressi, con possibilita' di realizzare due unita' abitative indipendenti.Completa la proprietà una cantina spaziosa e due posti auto coperti. Un'opportunità unica per chi cerca il massimo comfort e stile in una delle zone più esclusive di La Spezia. Se vuoi essere sempre aggiornato sulle nostre nuove proposte, seguici sul nostro profilo Instagram!!!???????? Non perderti le ultime novita' nel mondo immobiliare.???? grimaldi_immobiliare_laspezia

Condizioni economiche

Contratto: Vendita
Prezzo: Prezzo su richiesta
Libero: Si

Informazioni principali

Tipologia: Appartamento
Città: La Spezia
Superficie: 310 m²
N° locali: 6
N° bagni: 4
Piano:
Box: Doppio
Cucina: Abitabile

Efficenza energetica

Classe energetica:
Climatizzatore: Si
Anno di costruzione: 0
Riscaldamento: autonomo

Caratteristiche

Cantina: Si
Ascensore: Si

Dati inserzione

ID Offrocasa.com: 11018616
Data inserimento: 18/03/2026
Rif. Agenzia: Cod. rif 3303543VRG
Rif. Agenzia Cod. rif 3303543VRG

Grimaldi Immobiliare

Viale Italia 91 - La Spezia
0187730704
Richiedi Info dal form:
Accetto l'Informativa Privacy


Condividi

Grimaldi Immobiliare

Viale Italia 91 - La Spezia

Appartamento in Vendita a La Spezia, 310 m²

Chiama
Contatta