Quadrilocale in Vendita a Roma, 185'000€, 100 m²

Locali: 4
Bagni: 2
Camere: 3
Piano: 1°
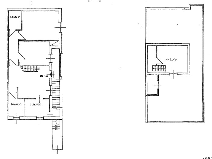
Proponiamo in vendita un appartamento su due livelli situato al primo piano di una palazzina in cortina, in Via Beduschi, nel quartiere Monti di San Paolo - Acilia. L'immobile è dotato di ingresso indipendente e si sviluppa tra primo e secondo piano, offrendo ambienti ampi e ben distribuiti. Il primo livello è composto da ingresso su soggiorno, cucina, due camere matrimoniali, doppi servizi. Il piano superiore ospita una camera con accesso ad un ampio terrazzo angolare, ideale come spazio esterno vivibile. La cucina e i bagni sono stati recentemente ristrutturati. L'appartamento è inoltre dotato di riscaldamento autonomo e infissi in PVC con doppio vetro, che garantiscono un buon isolamento termico e acustico. Ti piacerebbe visitarlo o ricevere informazioni ? Contattaci via e-mail o telefono, saremo felici di rispondere alle tue curiosità ! ag.acilia@professionecasa.it 06 69261707 - 3496694423.

Condizioni economiche

Contratto: Vendita
Prezzo: 185'000€

Informazioni principali

Tipologia: Quadrilocale
Città: Roma
Superficie: 100 m²
N° locali: 4
N° bagni: 2
N° Camere: 3
Piano:
Cucina: Abitabile

Efficenza energetica

Classe energetica: 2015-G
Ipe: 127.00 kwm2
Climatizzatore: Si
Anno di costruzione: 1990
Riscaldamento: autonomo

Dati inserzione

ID Offrocasa.com: 11018507
Data inserimento: 18/03/2026
Rif. Agenzia: Cod. rif 3303051VRG
Rif. Agenzia Cod. rif 3303051VRG

Professionecasa

Via di Saponara 19/21 - Roma
06.69261707
Richiedi Info dal form:
Accetto l'Informativa Privacy


Condividi

Professionecasa

Via di Saponara 19/21 - Roma

Quadrilocale in Vendita a Roma, 185'000€, 100 m²

Chiama
Contatta