Appartamento in Vendita a Benevento, 138'000€, 150 m²

Locali: 5
Bagni: 2
Camere: 3
Piano: 1°
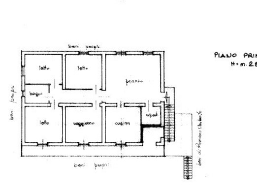
**Appartamento in Vendita con Vista Panoramica** Scopri questo affascinante appartamento situato in una posizione collinare, a pochi chilometri dalla famosa Rotonda dei Pentri. Questo immobile al primo piano di un mini condominio offre una superficie commerciale di circa 150 mq, perfetta per chi cerca ampi spazi e comfort. L'appartamento è composto da un luminoso salone a vista, un soggiorno accogliente, una cucina abitabile e tre camere da letto spaziose. Con due bagni e un comodo sottotetto/deposito, ogni angolo è pensato per garantire praticità e funzionalità. La presenza di una stufa idro pellet assicura calore durante i mesi più freddi, mentre la tripla esposizione rende gli ambienti particolarmente luminosi. Non perdere l'opportunità di godere di una ampia balconata e di un terrazzo privato, ideali per momenti di relax all'aperto con vista panoramica. Gli spazi condominiali ben curati offrono ulteriore comfort e tranquillità. L'immobile, costruito nel 1985, è in buono stato e dotato di ascensore per facilitare gli spostamenti. Con aria condizionata e riscaldamento ogni stagione sarà vissuta nel massimo del benessere. Non lasciarti sfuggire questa occasione unica di vivere in un contesto sereno e panoramico! Contattaci per organizzare una visita. Grimaldi, con te nelle scelte importanti!

Condizioni economiche

Contratto: Vendita
Prezzo: 138'000€
Libero: Si

Informazioni principali

Tipologia: Appartamento
Città: Benevento
Superficie: 150 m²
N° locali: 5
N° bagni: 2
N° Camere: 3
Piano:
Cucina: Abitabile

Efficenza energetica

Classe energetica: 2015-G
Ipe: 3.51 kwm2
Climatizzatore: Si
Anno di costruzione: 1985
Riscaldamento: autonomo

Dati inserzione

ID Offrocasa.com: 11016721
Data inserimento: 15/03/2026
Rif. Agenzia: Cod. rif 3301292VRG
Rif. Agenzia Cod. rif 3301292VRG

Grimaldi Immobiliare

Via Mellusi 110 - Benevento
0824271158
Richiedi Info dal form:
Accetto l'Informativa Privacy


Condividi

Grimaldi Immobiliare

Via Mellusi 110 - Benevento

Appartamento in Vendita a Benevento, 138'000€, 150 m²

Chiama
Contatta