Appartamento in Vendita a Torino, 249'000€, 230 m²

Locali: 5
Bagni: 1
Camere: 4
Piano: 1°
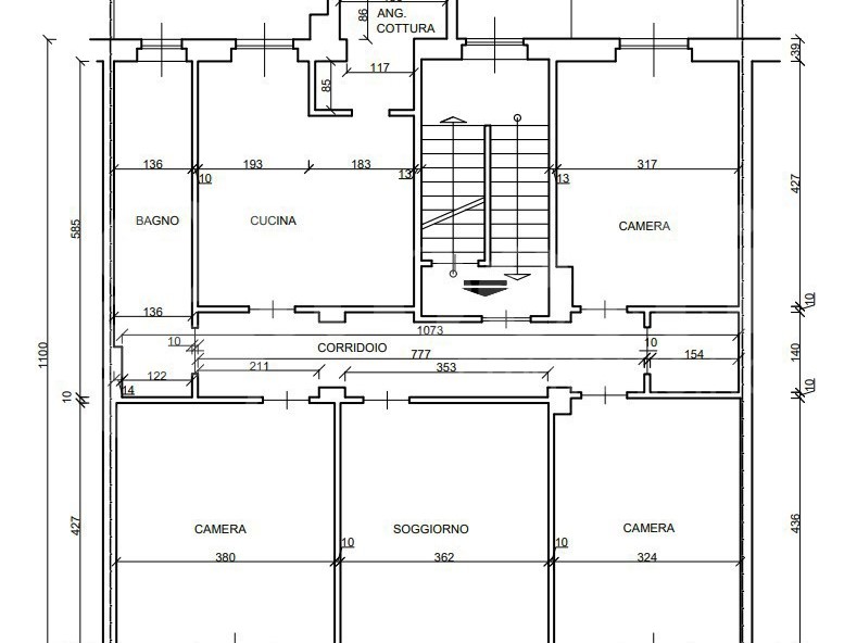
IN EDIFICIO BIFAMILIARE DI 2 PIANI IN CUI VERRA' RIFATTA LA FACCIATA ESTERNA CON CAPPOTTO ISOLANTE, PROPONIAMO AMPIO APPARTAMENTO DI 120 MQ ATTUALMENTE DA RISTRUTTURARE COMPOSTO DA INGRESSO, 4 CAMERE, SOGGIORNO, CUCININO, BAGNO, RIPOSTIGLIO, BALCONI, CON SOTTOTETTO COLLEGATO DI 110 MQ IN CUI E' POSSIBILE RECUPERABILI AD USO ALTRE 3 STANZE E SERVIZI . POSSIBILITA' ACQUISTO DELL'APPARTAMENTO ALLO STATO ATTUALE O CON PROGETTO DI RISTRUTTURAZIONE (IN PREPARAZIONE) RISCALDAMENTO AUTONOMO, IMMOBILE LIBERO SUBITO NO SPESE CONDOMINIALI (SOLO TASSA PASSO CARRAIO) POSIZIONE: ZONA AERONAUTICA POZZO STRADA, TRANQUILLA E BEN ABITATA, VICINO UNIVERSITA' AGRARIA E VETERINARIA - CORSO FRANCIA FERMATE METRO MARCHE - PARADISO - STAZIONE TRENO, SERVITISSIMA DA NEGOZI SUPERMERCATI, MEZZI PUBBLICI, SERVIZI, SCUOLE, PARCHI PER INFORMAZIONI E APPUNTAMENTI: AGENZIA GABETTI DI VIA ADAMELLO 89 TORINO TEL 3756490249 (nb l'immagine della facciata esterna è un rendering di come circa verrà ristrutturata)

Condizioni economiche

Contratto: Vendita
Prezzo: 249'000€
Libero: Si

Informazioni principali

Tipologia: Appartamento
Città: Torino
Superficie: 230 m²
N° locali: 5
N° bagni: 1
N° Camere: 4
Piano:

Efficenza energetica

Classe energetica:
Ipe: 0.00 kwm2
Anno di costruzione: 1964
Riscaldamento: autonomo

Dati inserzione

ID Offrocasa.com: 11016699
Data inserimento: 15/03/2026
Rif. Agenzia: Cod. rif 3298307VRG
Rif. Agenzia Cod. rif 3298307VRG

Gabetti

via Adamello 89 - Torino
011/4222325
Richiedi Info dal form:
Accetto l'Informativa Privacy


Condividi

Gabetti

via Adamello 89 - Torino

Appartamento in Vendita a Torino, 249'000€, 230 m²

Chiama
Contatta