Appartamento in Vendita a Massa, 349'000€, 106 m², arredato

Locali: 7
Bagni: 2
Camere: 2
Piano: 1°
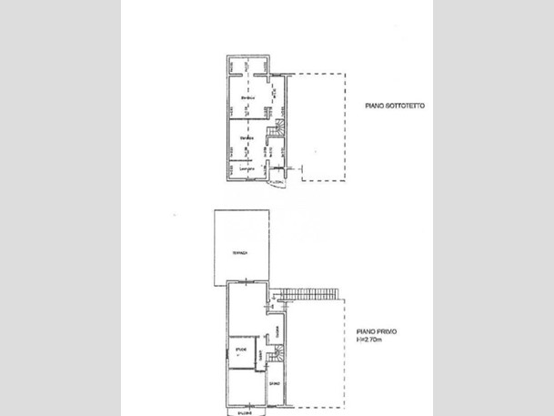
A poche centinaia di metri dal centro, in elegante contesto quadrifamiliare , splendido appartamento di 106 mq , completamente ristrutturato e personalizzato con gusto e pregio, (costruzione del 2007) situato al primo piano e internamente disposto su due livelli. L' immobile è una soluzione moderna, raffinata e ideale per clienti che cercano una casa pronta da vivere con stile e confort. L'immobile si distingue per la cura dei dettagli e per ambienti accoglienti che trasmettono pace e quiete. L'ingresso introduce in una luminosissima zona giorno con ampia sala e cucina separata, disimpegno con camera matrimoniale balconata con vista Castello, cameretta/studio e bagno con vasca, molto bello , con eleganti mosaici. Al piano superiore , ampia zona notte mansardata ( altezza al colmo circa 3 metri) suddivisa in zona notte, studio e bagno con doccia ed illuminata oltre che da finestre da grandi lucernai velox. Ma la chicca dell' immobile e la splendida terrazza di 35 mq , paradiso per cene con amici o semplici colazioni, dotata di pergotenda . Completano la proposta un posto auto di proprietà, piuttosto lungo ,che potrebbe anche ospitare due utilitarie in contemporanea. Viene venduta parzialmente arredata, climatizzata e allarmata perimetralmente.

Condizioni economiche

Contratto: Vendita
Prezzo: 349'000€
Arredato: si

Informazioni principali

Tipologia: Appartamento
Città: Massa
Superficie: 106 m²
N° locali: 7
N° bagni: 2
N° Camere: 2
Piano:
Posto auto: 2

Efficenza energetica

Classe energetica: E
Ipe: 99,44 kwm2
Anno di costruzione: 2007
Ristrutturato: si

Dati inserzione

ID Offrocasa.com: 11016450
Data inserimento: 15/03/2026
Rif. Agenzia: 1400006/2127/CHI-048
Rif. Agenzia 1400006/2127/CHI-048

Innocenti Case Immobiliare

Via Via Cavour,, 59 - Massa (Massa Carrara)
3277945602
Richiedi Info dal form:
Accetto l'Informativa Privacy


Condividi

Innocenti Case Immobiliare

Via Via Cavour,, 59 - Massa (Massa Carrara)

Appartamento in Vendita a Massa, 349'000€, 106 m², arredato

Chiama
Contatta