Appartamento in Vendita a Militello in Val di Catania, 650'000€, 985 m², con Box

Locali: 9
Camere: 1
Piano: t
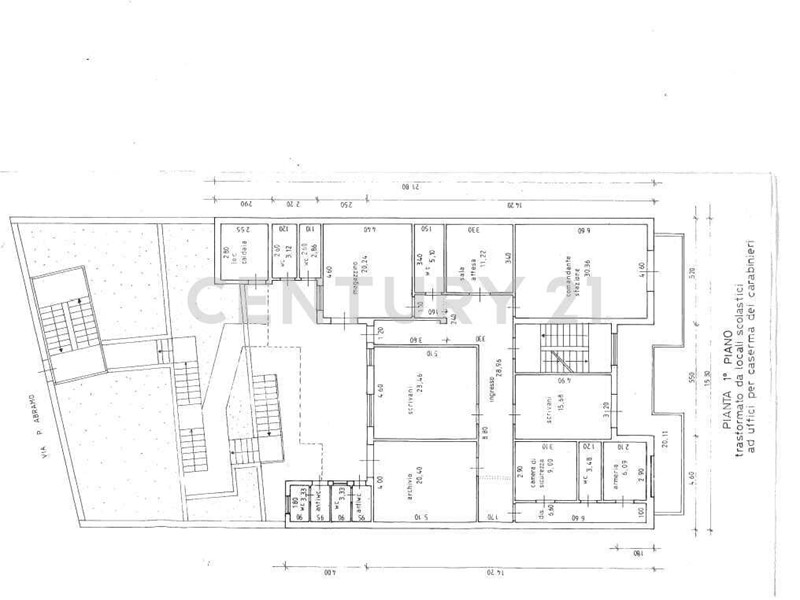
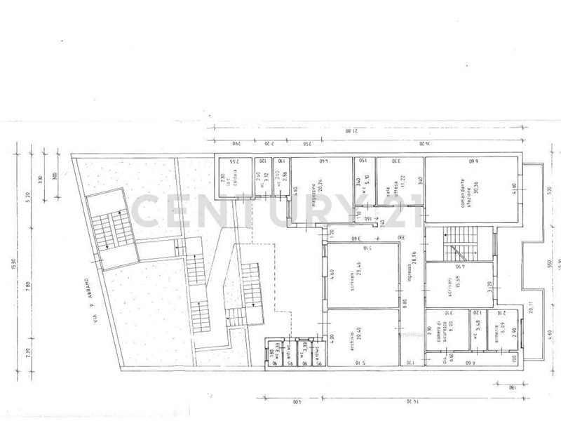
INVESTIMENTO BLINDATO: Palazzo 5 Livelli – Rendita 6,15% (Locato Ministero degli Interni) Proponiamo in vendita un prestigioso palazzo indipendente su 5 livelli, situato in posizione strategica a Militello in Val di Catania. L'immobile rappresenta una delle soluzioni di investimento più sicure attualmente sul mercato, essendo interamente locato al Ministero degli Interni. Analisi Finanziaria dell'Investimento Prezzo di Richiesta: € 650.000,00 Canone Annuo: € 40.000,00 Rendimento Lordo: 6,15% annuo Conduttore: Ministero degli Interni (Pagamenti garantiti dallo Stato) Punti di Forza dell'Asset Solidità del Conduttore: Rischio di morosità inesistente. La locazione istituzionale garantisce flussi di cassa certi e puntuali. Indipendenza Totale: Trattandosi di un cielo-terra (terratetto) su 5 livelli, non ci sono spese condominiali o interferenze con terzi. Asset Patrimoniale: Un intero palazzo di 5 piani costituisce una riserva di valore destinata a rivalutarsi nel tempo. Manutenzione: Immobile gestito con standard istituzionali, garantendo il decoro della struttura. Caratteristiche Tecniche Tipologia: Palazzo Cielo-Terra (Terratetto). Sviluppo: 5 livelli fuori terra collegati internamente. Stato: Stato conservativo buono. Nota per l'investitore: In un mercato volatile, un rendimento superiore al 6% garantito da un ente statale rappresenta la "Safe Haven" (porto sicuro) per eccellenza nel settore immobiliare. Per ricevere la documentazione contrattuale (contratto di locazione e planimetrie) o per fissare un sopralluogo contattaci

Condizioni economiche

Contratto: Vendita
Prezzo: 650'000€
Arredato: No

Informazioni principali

Tipologia: Appartamento
Città: Militello in Val di Catania
Vicinanze: Centrale
Superficie: 985 m²
N° locali: 9
N° Camere: 1
Piano: t
N° balconi: 1
Box: Si
Posto auto: Si
Giardino: Si

Efficenza energetica

Classe energetica: G
Anno di costruzione: 0
Condizioni stabile: Discreto
Riscaldamento: Autonomo

Dati inserzione

ID Offrocasa.com: 11015461
Data inserimento: 14/03/2026
Rif. Agenzia: 012-024
Rif. Agenzia 012-024

CENTURY 21 Excellentia

Via Antonio Pacinotti 30 - Catania
095.7511049
Richiedi Info dal form:
Accetto l'Informativa Privacy


Condividi

CENTURY 21 Excellentia

Via Antonio Pacinotti 30 - Catania

Appartamento in Vendita a Militello in Val di Catania, 650'000€, 985 m², con Box

Chiama
Contatta