Appartamento in Vendita a Arquata Scrivia, 37'575€, 136 m², con Box

Locali: 6
Camere: 2
Piano: 1
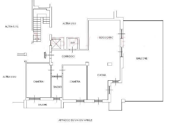
Piena proprietà di unità immobiliare a destinazione residenziale, posta al 1°piano di un fabbricato plurifamiliare, con accesso dal vano scala condominiale. L’alloggio risulta composto da un corridoio di ingresso, un piccolo ripostiglio, un ampio soggiorno comunicante con la cucina, due camere da letto, un servizio igienico, un piccolo balcone con affaccio da una camera e un ampio terrazzo con affaccio dalla cucina e dal soggiorno.Oltre a box posto al piano seminterrato accessibile da corte condominiale. - Il Prezzo visualizzato è la Base d'Asta in quanto l’immobile è oggetto di esecuzione immobiliare venduto tramite Asta Giudiziaria. - L'immobile aggiudicato, viene venduto libero e sgombro da persone cose ed ipoteche nello stato di fatto e di diritto in cui si trova. - Non rappresentiamo il Tribunale, ma lavoriamo nell'esclusivo interesse del potenziale acquirente per garantire un acquisto sicuro. - I consulenti di ASTE ITALIA ti assisteranno in tutte le attività dell'iter giudiziario dalla visita dell'immobile fino alla consegna chiavi. - Contatta il nostro Servizio Clienti , i nostri operatori sono a disposizione per chiarire i molteplici dubbi per partecipare alle ASTE.

Condizioni economiche

Contratto: Vendita
Prezzo: 37'575€
Arredato: No

Informazioni principali

Tipologia: Appartamento
Città: Arquata Scrivia
Superficie: 136 m²
N° locali: 6
N° Camere: 2
Piano: 1
N° balconi: 1
Box: Si
Cucina: Angolo cottura

Efficenza energetica

Classe energetica: G
Anno di costruzione: 0
Condizioni stabile: Discreto
Riscaldamento: Centralizzato

Dati inserzione

ID Offrocasa.com: 11015147
Data inserimento: 14/03/2026
Rif. Agenzia: AL197/24LU-1706-26-1000
Rif. Agenzia AL197/24LU-1706-26-1000

ASTE ITALIA

Via Serra 6 Int 7 - Genova (GE)
010.8935240
Richiedi Info dal form:
Accetto l'Informativa Privacy


Condividi

ASTE ITALIA

Via Serra 6 Int 7 - Genova (GE)

Appartamento in Vendita a Arquata Scrivia, 37'575€, 136 m², con Box

Chiama
Contatta