Trilocale in Vendita a Parma, 155'000€, 90 m², con Box

Locali: 3
Camere: 2
Piano: 1
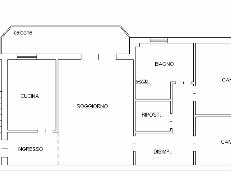
Parma sud a 7 km nel Paese di Pannocchia, zona servita da mezzi pubblici per il collegamento con la città, proponiamo un interessante e luminoso trilocale di 90 mq ben distribuito al suo interno e posto al primo piano senza ascensore in una bella palazzina di sole 8 unità abitative. L'appartamento rifinito con parquet in tutti gli ambienti ad eccezione di bagno e cucina si presenta in ottimo stato d'uso ed è cosi composto, ingresso, cucina abitabile con porta finestra con accesso alla loggia, ampio soggiorno ben sfruttabile con tre pareti di appoggio, loggia comunicante con cucina e sala, disimpegno zona notte, una camera doppia ed una camera matrimoniale, bagno con vasca e doccia ormai introvabili, lavanderia predisposta per ricavare un secondo bagno. completano l'offerta una cantina ed una autorimessa doppia. Presente nell'edificio l'impianto di addolcitore. Caratteristiche termo autonomo, climatizzato, doppi vetri con serramento in legno, porta blindata. L'immobile ora risulta locato con regolare contratto in scadenza nel maggio del 2027.

Condizioni economiche

Contratto: Vendita
Prezzo: 155'000€
Arredato: No

Informazioni principali

Tipologia: Trilocale
Città: Parma
Vicinanze: Centrale
Superficie: 90 m²
N° locali: 3
N° Camere: 2
Piano: 1
N° balconi: 1
Box: Si
Cucina: Abitabile

Efficenza energetica

Classe energetica: D
Anno di costruzione: 1996
Condizioni stabile: Buono

Caratteristiche

Cantina: Si

Dati inserzione

ID Offrocasa.com: 11015050
Data inserimento: 14/03/2026
Rif. Agenzia: 2027
Rif. Agenzia 2027

Business Servizi Immobiliari

Str. Langhirano 435/D - Parma (PR)
0521.630047
Richiedi Info dal form:
Accetto l'Informativa Privacy


Condividi

Business Servizi Immobiliari

Str. Langhirano 435/D - Parma (PR)

Trilocale in Vendita a Parma, 155'000€, 90 m², con Box

Chiama
Contatta