Trilocale in Vendita a Pachino, 310'000€, 70 m², arredato

Locali: 3
Bagni: 2
Camere: 2
Piano: 1°
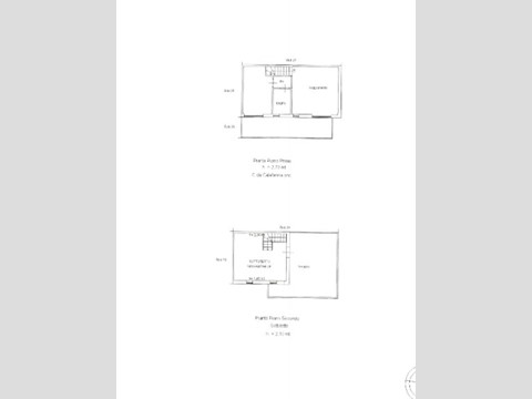
Situato all'interno del prestigioso e curato residence Borgo 84, proponiamo in vendita un luminoso appartamento su due livelli, perfetto per chi cerca un mix tra design mediterraneo, comfort moderno e una vista mozzafiato sul blu. L'appartamento, posto al primo piano e venduto completamente arredato, è distribuito in modo funzionale per garantire privacy e comfort: Primo Piano: Ingresso su una moderna zona living con cucina/soggiorno a pianta aperta, una confortevole camera matrimoniale e un bagno rifinito. Piano Rialzato (Mansarda): Un ulteriore ambiente dedicato al relax con una seconda camera e un secondo bagno privato. Il vero cuore pulsante della casa. Un ampio spazio esterno attrezzato, ideale per cene al tramonto o colazioni vista mare, con un panorama che spazia sulla costa di Marzamemi. Posto Auto: Incluso nella proprietà un posto auto scoperto numerato (fondamentale a Marzamemi durante l'alta stagione). Il residence Borgo 84 è rinomato per la pulizia, il decoro e l'atmosfera esclusiva. La casa è pronta per essere abitata o inserita nel circuito degli affitti brevi. Perché sceglierlo? Seconda Casa da Sogno: A pochi passi dal centro storico e dalle spiagge, ma fuori dal caos della movida notturna. Investimento Strategico: Marzamemi vanta uno dei tassi di occupazione turistica più alti della zona. La configurazione con due bagni e il terrazzo vista mare lo rende un immobile ad alta redditività (ROI elevato). Località: Marzamemi (SR) - Residence Borgo 84 Piano: Primo + Rialzato Caratteristiche: Vista Mare, Posto Auto Numerato, Arredato. Contattaci per una visita Non perdere l'occasione di possedere un angolo di paradiso in uno dei borghi più belli d'Italia.

Condizioni economiche

Contratto: Vendita
Prezzo: 310'000€
Arredato: Si

Informazioni principali

Tipologia: Trilocale
Città: Pachino
Superficie: 70 m²
N° locali: 3
N° bagni: 2
N° Camere: 2
Piano:
Cucina: Abitabile
Giardino: Comune

Efficenza energetica

Classe energetica: 2015-A1
Ipe: 43.23 kwm2
Climatizzatore: Si
Anno di costruzione: 2022
Riscaldamento: centralizzato

Dati inserzione

ID Offrocasa.com: 11009994
Data inserimento: 13/03/2026
Rif. Agenzia: Cod. rif 3295910VRG
Rif. Agenzia Cod. rif 3295910VRG

Gabetti

via Lincoln 83 - Pachino (Siracusa)
0931/591423
Richiedi Info dal form:
Accetto l'Informativa Privacy


Condividi

Gabetti

via Lincoln 83 - Pachino (Siracusa)

Trilocale in Vendita a Pachino, 310'000€, 70 m², arredato

Chiama
Contatta