Trilocale in Vendita a Monreale, 91'000€, 80 m²

Locali: 3
Bagni: 1
Camere: 2
Piano: 2°
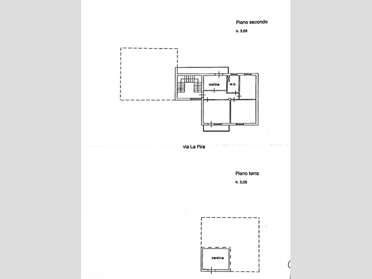
A Monreale, nei pressi del campo sportivo, in una zona altamente servita da vari esercizi commerciali, proponiamo in vendita ampio e luminoso 3 vani in doppia esposizione. L'appartamento di 80 mq. è posto al 2° piano senza ascensore, ideale per famiglie che cercano spazio e comfort. L'immobile si apre su un ampio ingresso che separa la cucina abitabile con balcone e veranda dalla luminosa sala da pranzo, anch'essa con balcone. La zona notte comprende una camera matrimoniale, una cameretta e bagno con vasca. Dotato di pavimentazione in marmo, infissi in alluminio doppio vetrocamera, serrande in PVC e pompe di calore. Inoltre è presente una cantina di 8 mq. al piano terra. Contattaci per organizzare una visita e scoprire tutte le potenzialità di questo immobile. Per info: Agenzia Gabetti Palermo Libertà, Via Camillo Cavour N°53/D, Tell 0919294008 - Mail: palermoliberta@gabetti.it

Condizioni economiche

Contratto: Vendita
Prezzo: 91'000€
Arredato: No
Libero: Si

Informazioni principali

Tipologia: Trilocale
Città: Monreale
Superficie: 80 m²
N° locali: 3
N° bagni: 1
N° Camere: 2
Piano:
Cucina: Abitabile

Efficenza energetica

Classe energetica: 2015-G
Ipe: 153.74 kwm2
Climatizzatore: Si
Anno di costruzione: 1970

Dati inserzione

ID Offrocasa.com: 11005080
Data inserimento: 12/03/2026
Rif. Agenzia: LMN200 - 06/2026VRG
Rif. Agenzia LMN200 - 06/2026VRG

Gabetti

Via Camillo Cavour 53/D - Palermo
0919294008
Richiedi Info dal form:
Accetto l'Informativa Privacy


Condividi

Gabetti

Via Camillo Cavour 53/D - Palermo

Trilocale in Vendita a Monreale, 91'000€, 80 m²

Chiama
Contatta