Appartamento in Vendita a Luzzi, 59'000€, 130 m², con Box

Locali: 5
Bagni: 1
Camere: 2
Piano: Terra
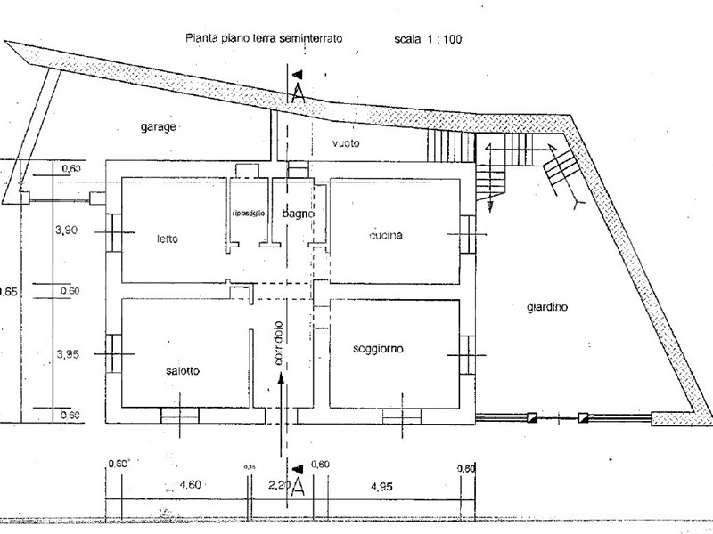
Proponiamo in vendita appartamento al piano terra situata nel comune di Luzzi (CS), con una superficie di 130 mq distribuiti su 4 locali e 1 bagni. La casa vanta uno stato buono, con interni ben tenuti . Inoltre, dispone di impianto di riscaldamento e un box auto. Questa casa è pronta ad accogliere i suoi nuovi proprietari in un ambiente accogliente e funzionale ottima soluzione anche come investimento. Gabetti Franchising Agency. Via Carlo Bilotti 10 - 87036 Rende. Tel. 0984659552 Cell. 3335861969 email rende@gabetti.it Il presente annuncio non costituisce, in alcun modo, vincolo contrattuale in relazione al fatto che potrebbe includere errori di trascrizione riguardo i dati indicati. Invitiamo per correttezza a verificare personalmente i dati al momento della visione, nella massima trasparenza.

Condizioni economiche

Contratto: Vendita
Prezzo: 59'000€

Informazioni principali

Tipologia: Appartamento
Città: Luzzi
Superficie: 130 m²
N° locali: 5
N° bagni: 1
N° Camere: 2
Piano: Terra
Box: Si
Cucina: Abitabile

Efficenza energetica

Classe energetica: 2015-C
Ipe: 111.18 kwm2
Anno di costruzione: 0
Riscaldamento: autonomo

Dati inserzione

ID Offrocasa.com: 11005009
Data inserimento: 12/03/2026
Rif. Agenzia: Cod. rif 3226477VRG
Rif. Agenzia Cod. rif 3226477VRG

Gabetti

Via Carlo Bilotti 10 - Rende (Cosenza)
0984/1863870
Richiedi Info dal form:
Accetto l'Informativa Privacy


Condividi

Gabetti

Via Carlo Bilotti 10 - Rende (Cosenza)

Appartamento in Vendita a Luzzi, 59'000€, 130 m², con Box

Chiama
Contatta