Appartamento in Vendita a Monteriggioni, zona Santa Colomba, 330'000€, 130 m², arredato

Locali: 5
Bagni: 2
Camere: 3
Piano: 1°
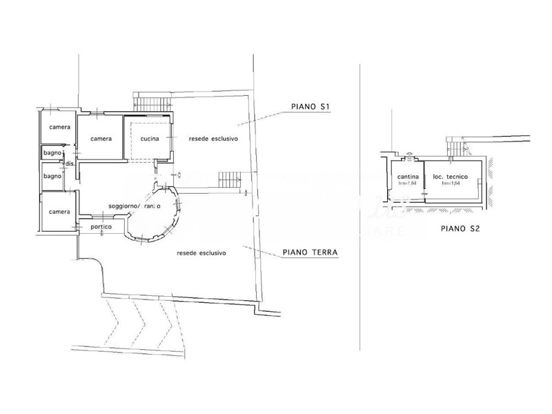
Siena nord Nel cuore di Monteriggioni, immerso nel fascino antico di Santa Colomba, proponiamo questo splendido appartamento con una superficie di 130 metri quadrati. Caratterizzato da un ingresso indipendente e situato al primo piano, gode di un'esposizione sud che garantisce luce naturale tutto il giorno. Ristrutturato con gusto, l'abitazione offre una combinazione perfetta di comfort moderni e tradizione toscana ed e' cosi' composto cucina grande abitabile con soggiorno che accedono dirette al giardino, di 170 mq privato, zona notte composta da tre camere e due bagni, inoltre a completo della proprieta' e' presente una cantina e locali tecnici. Posti auto di proprieta' in ampio piazzale. La classe energetica B rende questa proprietà non solo attraente ma anche sostenibile. Goditi la vita in uno dei borghi più suggestivi della provincia di Siena senza spese condominiali. Richiesta 330000 trattabili

Condizioni economiche

Contratto: Vendita
Prezzo: 330'000€
Prezzo trattabile: si
Arredato: si

Informazioni principali

Tipologia: Appartamento
Città: Monteriggioni
Zona: Santa Colomba
Superficie: 130 m²
N° locali: 5
N° bagni: 2
N° Camere: 3
Piano:
Posto auto: 4
Giardino: privato
Esposizione: sud

Efficenza energetica

Classe energetica: B
Ipe: 80,00 kwm2
Ristrutturato: si

Dati inserzione

ID Offrocasa.com: 11004935
Data inserimento: 12/03/2026
Rif. Agenzia: 1399539/1170/v11141
Rif. Agenzia 1399539/1170/v11141

TOSCANA DOMUS Immobiliare

Viale Viale Cavour,, 94 - Siena
0577058145
Richiedi Info dal form:
Accetto l'Informativa Privacy


Condividi

TOSCANA DOMUS Immobiliare

Viale Viale Cavour,, 94 - Siena

Appartamento in Vendita a Monteriggioni, zona Santa Colomba, 330'000€, 130 m², arredato

Chiama
Contatta