Appartamento in Vendita a Bologna, 599'000€, 150 m²

Locali: 5
Bagni: 2
Camere: 3
Piano: 2°
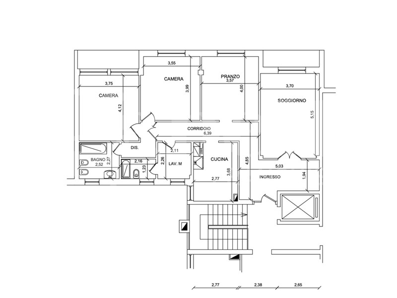
APPARTAMENTO RISTRUTTURATO di ampia metratura - 150 mq commerciali - Zona Mazzini, Bologna In Zona Mazzini, una delle aree residenziali più richieste e servite di Bologna, proponiamo in vendita appartamento nuovo da impresa di circa 150 mq commerciali, situato al secondo piano con ascensore all'interno di palazzina anni '80. L'immobile offre ambienti ampi e ben distribuiti, ideali per chi cerca una soluzione moderna e pronta da vivere in un contesto comodo a tutti i servizi. Composizione: Ingresso Ampio soggiorno luminoso Cucina abitabile Tre camere da letto Due bagni Lavanderia Ripostiglio La proprietà è arricchita da due balconi, che garantiscono ottima luminosità e piacevoli sfoghi esterni, oltre a una cantina al piano interrato. La posizione è strategica: quartiere residenziale tranquillo ma perfettamente collegato al centro storico, con negozi, scuole, supermercati, parchi e mezzi pubblici nelle immediate vicinanze. Soluzione ideale per famiglie o per chi desidera un appartamento di ampia metratura, completamente rinnovato e pronto da abitare. Per maggiori informazioni o per organizzare una visita, contattaci senza impegno.

Condizioni economiche

Contratto: Vendita
Prezzo: 599'000€
Arredato: No
Spese condominiali: 100€
Libero: Si

Informazioni principali

Tipologia: Appartamento
Città: Bologna
Superficie: 150 m²
N° locali: 5
N° bagni: 2
N° Camere: 3
Piano:
Cucina: Abitabile

Efficenza energetica

Classe energetica:
Ipe: 0.00 kwm2
Anno di costruzione: 1980
Riscaldamento: centralizzato

Caratteristiche

Cantina: Si
Ascensore: Si

Dati inserzione

ID Offrocasa.com: 11003287
Data inserimento: 11/03/2026
Rif. Agenzia: E15RVRG
Rif. Agenzia E15RVRG

Elite Real Estate Srl

Prossima Apertura - - Bologna
Richiedi Info dal form:
Accetto l'Informativa Privacy


Condividi

Elite Real Estate Srl

Prossima Apertura - - Bologna

Appartamento in Vendita a Bologna, 599'000€, 150 m²

Contatta