Trilocale in Vendita a Milano, 449'000€, 113 m²

Locali: 3
Bagni: 2
Camere: 2
Piano: Terra
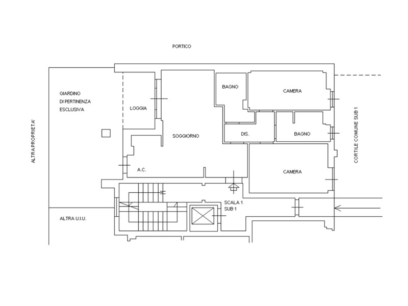
In un contesto residenziale moderno e curato, all'interno di uno stabile di recente costruzione del 2008, proponiamo in vendita un elegante appartamento di 113 mq, caratterizzato da ambienti ampi e luminosi, doppia esposizione e piacevoli spazi esterni privati che ne aumentano comfort e vivibilità. L'ingresso si apre su una spaziosa zona living con cucina a vista, un ambiente conviviale e luminoso che affaccia direttamente sul giardino privato, ideale per momenti di relax all'aperto o per ricevere amici e familiari. La zona notte, ben separata da un comodo disimpegno, ospita una camera matrimoniale, una cameretta e due bagni, di cui uno finestrato con spazio dedicato alla lavanderia. La proprietà è ulteriormente impreziosita da un patio perfetto come area pranzo esterna, un giardino privato e una cantina, che garantiscono praticità e ulteriore spazio di servizio. Nel corso degli anni l'appartamento è stato oggetto di interventi di ristrutturazione e miglioramento, con il rinnovo della zona giorno nel 2017 e dei bagni nel 2021, che oggi si presentano moderni ed eleganti. La doppia esposizione - sud/sud-ovest nella zona giorno e nord/nord-est nelle camere - garantisce un'ottima luminosità naturale e una piacevole ventilazione degli ambienti. L'abitazione è dotata di numerosi comfort e soluzioni tecnologiche pensate per migliorare la qualità della vita quotidiana: climatizzazione caldo/freddo con split nel soggiorno e nelle camere, zanzariere su tutte le finestre e nell'area patio, teleriscaldamento gestibile in autonomia tramite termostato domotico BTicino programmabile anche da remoto, impianto di irrigazione domotico a quattro zone per la gestione automatizzata degli spazi esterni e videocitofono controllabile a distanza. I bagni sono inoltre impreziositi da illuminazione con cromoterapia, mentre il bagno finestrato ospita una pratica zona lavanderia con spazio per lavatrice e asciugatrice. Particolare attenzione è stata dedicata anche alla sicurezza, grazie alla presenza di grate di protezione su tutte le aperture, sistema di allarme volumetrico e perimetrale collegato ai telefoni personali e serratura antieffrazione. Il contesto condominiale offre inoltre servizi esclusivi per i residenti, tra cui una palestra attrezzata con tapis roulant, macchinari multifunzione e pesi, oltre a un locale comune utilizzabile per feste ed eventi. La posizione è particolarmente strategica: l'immobile dista circa 700 metri dal capolinea della metropolitana linea verde di Piazza Abbiategrasso, mentre a circa 500 metri si trova la fermata Sant'Abbondio delle linee tram 3 e 15, comode per raggiungere rapidamente la zona Navigli e il centro città. La zona è inoltre servita dalla linea autobus 79, con collegamento diretto verso l'area Bocconi. Completa la proprietà un box doppio pertinenziale di 24 mq dotato di apertura telecomandata acquistabile separatamente al prezzo di 40.000 ? L'immobile sarà disponibile dal 1° settembre e verrà consegnato libero da arredi.

Condizioni economiche

Contratto: Vendita
Prezzo: 449'000€
Spese condominiali: 185€
Libero: Si

Informazioni principali

Tipologia: Trilocale
Città: Milano
Superficie: 113 m²
N° locali: 3
N° bagni: 2
N° Camere: 2
Piano: Terra
Cucina: Abitabile
Giardino: Privato

Efficenza energetica

Classe energetica: 2015-C
Ipe: 115.86 kwm2
Climatizzatore: Si
Anno di costruzione: 2008

Caratteristiche

Cantina: Si

Dati inserzione

ID Offrocasa.com: 11003159
Data inserimento: 11/03/2026
Rif. Agenzia: 21/26VRG
Rif. Agenzia 21/26VRG

Grimaldi Immobiliare

Via Meda 11/A - Milano
02/8394905
Richiedi Info dal form:
Accetto l'Informativa Privacy


Condividi

Grimaldi Immobiliare

Via Meda 11/A - Milano

Trilocale in Vendita a Milano, 449'000€, 113 m²

Chiama
Contatta