Trilocale in Vendita a Messina, 98'000€, 81 m²

Locali: 3
Bagni: 1
Camere: 2
Piano: Terra
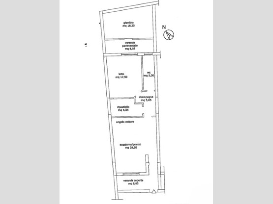
L'agenzia Gabetti propone a Mili Marina, zona di mare servita da tutte le attività di prima necessità e ben collegata al centro città grazie ai mezzi pubblici, un grazioso bilocale al piano terra all'interno del complesso "Le Terrazze sul Mare". L' abitazione è composta da un terrazzino di accesso, ampio soggiorno climatizzato con angolo cottura, un disimpegno reso funzionale da un utile armadio a muro, una camera da letto anch'essa climatizzata, una piccola cameretta, un bagno con doccia, una veranda cui si accede dalla camera da letto e un giardinetto di esclusiva proprietà. In casa sono presenti i termosifoni e tutti gli infissi sono dotati di zanzariere e inferriate apribili. Nell'area condominiale, con accesso diretto alla spiaggia, troviamo un posto auto assegnato di pertinenza. Ottimo anche come investimento.

Condizioni economiche

Contratto: Vendita
Prezzo: 98'000€

Informazioni principali

Tipologia: Trilocale
Città: Messina
Superficie: 81 m²
N° locali: 3
N° bagni: 1
N° Camere: 2
Piano: Terra
Posto auto: Si
Cucina: Angolo Cottura
Giardino: Comune

Efficenza energetica

Classe energetica:
Climatizzatore: Si
Anno di costruzione: 0

Dati inserzione

ID Offrocasa.com: 11001628
Data inserimento: 10/03/2026
Rif. Agenzia: Cod. rif 3300018VRG
Rif. Agenzia Cod. rif 3300018VRG

Gabetti

Prossima Apertura - - Messina
090.9215851
Richiedi Info dal form:
Accetto l'Informativa Privacy


Condividi

Gabetti

Prossima Apertura - - Messina

Trilocale in Vendita a Messina, 98'000€, 81 m²

Chiama
Contatta