Quadrilocale in Vendita a Perugia, 80'000€, 127 m²

Locali: 4
Bagni: 2
Piano: 1°
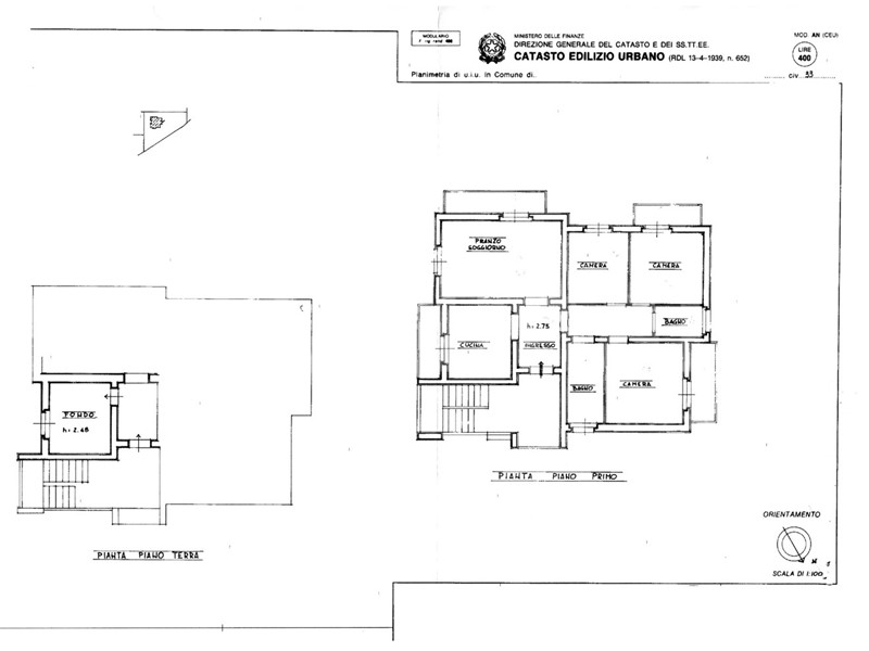
PERUGIA - Loc. Piccione | Appartamento con garage in casa singola In posizione centrale e comodamente servita, proponiamo in vendita appartamento situato al primo ed ultimo piano di una casa singola. L'immobile si compone di ingresso, ampio soggiorno, cucina abitabile, tre camere da letto e due bagni, offrendo spazi comodi e ben distribuiti, ideali per una famiglia o per chi desidera ambienti generosi. A completare la proprietà troviamo garage al piano terra e locale cantina, perfetti come spazio di rimessaggio o deposito. L'intera proprietà è completamente recintata e dotata di cancello elettrico carrabile e pedonale, con corte comune che garantisce praticità e sicurezza. L'appartamento necessita di lavori di ristrutturazione, rappresentando così una ottima opportunità per personalizzare gli ambienti secondo il proprio gusto e le proprie esigenze. Soluzione ideale per chi cerca indipendenza, spazi ampi e una posizione tranquilla ma ben collegata ai principali servizi.

Condizioni economiche

Contratto: Vendita
Prezzo: 80'000€

Informazioni principali

Tipologia: Quadrilocale
Città: Perugia
Superficie: 127 m²
N° locali: 4
N° bagni: 2
Piano:

Efficenza energetica

Classe energetica:
Anno di costruzione: 0

Dati inserzione

ID Offrocasa.com: 11001561
Data inserimento: 10/03/2026
Rif. Agenzia: Cod. rif 3300403VRG
Rif. Agenzia Cod. rif 3300403VRG

Grimaldi Immobiliare

Strada TrasimenoOvest 257 - Perugia
075/5172754
Richiedi Info dal form:
Accetto l'Informativa Privacy


Condividi

Grimaldi Immobiliare

Strada TrasimenoOvest 257 - Perugia

Quadrilocale in Vendita a Perugia, 80'000€, 127 m²

Chiama
Contatta