Trilocale in Vendita a Civita Castellana, 58'000€, 55 m², arredato

Locali: 3
Bagni: 2
Camere: 1
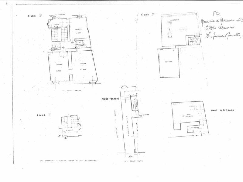
Splendido appartamento ad uso abitativo con 3 locali e 2 bagni, situato nel cuore di Civita Castellana (VT). Con una superficie di 55 mq, questo immobile vanta una cantina, un impianto di riscaldamento autonomo, e un terrazzo panoramico che offre una vista mozzafiato sul centro storico. Le condizioni interne sono ottime, con una cucina abitabile, una camera da letto spaziosa e una luminosa sala. La posizione strategica permette di raggiungere facilmente la stazione ferroviaria, caffè, ristoranti e servizi essenziali come il benzinaio. L'appartamento è libero e pronto per essere abitato, ideale per chi cerca un'abitazione accogliente e ben tenuta in una delle zone più suggestive di Civita Castellana.

Condizioni economiche

Contratto: Vendita
Prezzo: 58'000€
Arredato: Si
Libero: Si

Informazioni principali

Tipologia: Trilocale
Città: Civita Castellana
Superficie: 55 m²
N° locali: 3
N° bagni: 2
N° Camere: 1
Cucina: Abitabile

Efficenza energetica

Classe energetica:
Ipe: 0.00 kwm2
Anno di costruzione: 0
Riscaldamento: autonomo

Caratteristiche

Cantina: Si

Dati inserzione

ID Offrocasa.com: 11001483
Data inserimento: 10/03/2026
Rif. Agenzia: Cod. rif 3298540VRG
Rif. Agenzia Cod. rif 3298540VRG

Gabetti

via Giovanni XXIII 2/b - Civita Castellana (Viterbo)
0761/518051
Richiedi Info dal form:
Accetto l'Informativa Privacy


Condividi

Gabetti

via Giovanni XXIII 2/b - Civita Castellana (Viterbo)

Trilocale in Vendita a Civita Castellana, 58'000€, 55 m², arredato

Chiama
Contatta