Appartamento in Vendita a Gaiole in Chianti, 145'000€, 89 m²

Locali: 5
Bagni: 1
Camere: 2
Piano: 2°
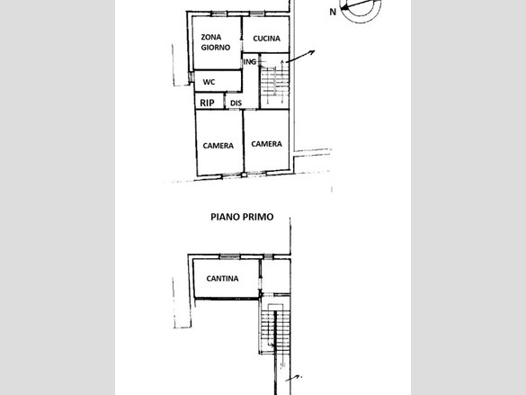
Rif. S2634 - Gaiole in Chianti - Giardino e cantina - Nel cuore del Chianti Storico, nella parte antica del paese dell'Eroica, appartamento al piano secondo di 89 mq catastali. L'immobile internamente è composto da zona giorno con camino, cucina abitabile con accesso al giardino di proprietà esclusiva di circa 43 mq in parte pavimentato su cui si trova un annesso di circa 6 mq, due camere da letto, bagno finestrato e ripostiglio. Completa la proprietà cantina al piano ammezzato di circa 20 mq con Ha 2,00 mt. Libero da subito. Presente predisposizione per riscaldamento a pellet. Buono stato di manutenzione. Ottimo investimento. Ape G - Ipe 356,15 kWh/m*anno - ? 145.000 Vorresti acquistare o vendere casa? chiamaci allo 0577 43600. Visita il nostro sito Toscanaestates.it

Condizioni economiche

Contratto: Vendita
Prezzo: 145'000€
Arredato: No
Libero: Si

Informazioni principali

Tipologia: Appartamento
Città: Gaiole in Chianti
Superficie: 89 m²
N° locali: 5
N° bagni: 1
N° Camere: 2
Piano:
Cucina: Abitabile
Giardino: Privato

Efficenza energetica

Classe energetica: 2015-G
Ipe: 356.15 kwm2
Anno di costruzione: 1950
Riscaldamento: autonomo

Caratteristiche

Cantina: Si

Dati inserzione

ID Offrocasa.com: 11001475
Data inserimento: 10/03/2026
Rif. Agenzia: Cod. rif 3300327VRG
Rif. Agenzia Cod. rif 3300327VRG

Gabetti

strada Massetana Romana 44 - Siena
0577/43600
Richiedi Info dal form:
Accetto l'Informativa Privacy


Condividi

Gabetti

strada Massetana Romana 44 - Siena

Appartamento in Vendita a Gaiole in Chianti, 145'000€, 89 m²

Chiama
Contatta