Trilocale in Vendita a Milano, 549'000€, 90 m², arredato

Locali: 3
Bagni: 1
Camere: 2
Piano: 4°
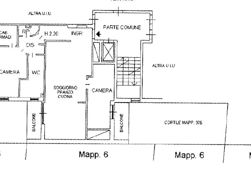
Corso Lodi 47 ad. Piazzale Lodi In stabile anni '70 con portineria presente tutto il giorno e ascensore, proponiamo silenzioso, appartamento ristrutturato di 87 mq al quarto piano, pronto da abitare. Composizione: - Ingresso - Soggiorno ampio con cucina a vista - Due camere da letto - Bagno finestrato - Ripostiglio - Cabina armadio - Due balconi - Cantina di pertinenza Caratteristiche interne: Ristrutturazione completa recente, pavimenti in cotto, infissi in PVC con doppi vetri, aria condizionata, tapparelle elettriche. Impianti moderni, ambienti luminosi, taglio funzionale. Zona servita in modo capillare: - MM3 Lodi T.I.B.B. a pochi passi - Passante FS Porta Romana ( Scalo romana ) autobus 90/91/92 nelle immediate vicinanze - Supermercati, Iper coop Piazzale Lodi, farmacie, scuole, palestre, bar e ristoranti a ridosso dell'abitazione - Comodità per chi si muove verso Porta Romana, Fondazione Prada, Università Bocconi e per l'accesso rapido alla tangenziale Soluzione ideale per chi cerca un appartamento moderno, ben rifinito e in una posizione strategica.

Condizioni economiche

Contratto: Vendita
Prezzo: 549'000€
Arredato: Si
Spese condominiali: 250€
Libero: Si

Informazioni principali

Tipologia: Trilocale
Città: Milano
Superficie: 90 m²
N° locali: 3
N° bagni: 1
N° Camere: 2
Piano:
Cucina: Abitabile
Giardino: Comune

Efficenza energetica

Classe energetica: 2015-D
Ipe: 115.26 kwm2
Climatizzatore: Si
Anno di costruzione: 1970
Riscaldamento: centralizzato

Caratteristiche

Cantina: Si
Ascensore: Si
Videocitofono: Si

Dati inserzione

ID Offrocasa.com: 10999432
Data inserimento: 08/03/2026
Rif. Agenzia: Cod. rif 3280403VRG
Rif. Agenzia Cod. rif 3280403VRG

Gabetti

viale Umbria 56 - Milano
02/54118533
Richiedi Info dal form:
Accetto l'Informativa Privacy


Condividi

Gabetti

viale Umbria 56 - Milano

Trilocale in Vendita a Milano, 549'000€, 90 m², arredato

Chiama
Contatta