Trilocale in Vendita a Alba Adriatica, 190'000€, 100 m², arredato

Locali: 3
Bagni: 1
Camere: 2
Piano: Terra
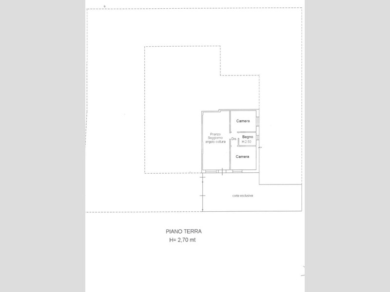
Rif.A228 ALBA ADRIATICA: Proponiamo in vendita un incantevole appartamento nel comune di Alba Adriatica, Teramo. Questa splendida proprietà, arredata con gusto e cura, si trova in una zona residenziale tranquilla e ben servita, a breve distanza dal mare. L'appartamento, con una superficie di 60 mq interni, si trova al piano terra con ingresso indipendente e accesso per disabili. Costruito nel 2007, l'immobile vanta un giardino privato pavimentato di circa 100 mq con un ulivo e una siepe verde, ideale per godersi momenti di relax all'aria aperta. L'interno dell'appartamento è luminoso e accogliente, con un ampio soggiorno che si affaccia su una cucina a vista moderna e funzionale. Un disimpegno conduce alle due camere da letto matrimoniali e al bagno finestrato con doccia. Le condizioni interne sono impeccabili, essendo l'immobile praticamente nuovo. Tra le dotazioni dell'appartamento, troviamo una porta blindata per garantire sicurezza e privacy, infissi in doppio vetro per un ottimo isolamento termico e acustico, inferiate, condizionatori caldo/freddo per il massimo comfort in ogni stagione, tende da sole e zanzariere per godere appieno degli spazi esterni. La presenza di locali come caffè, pub e parcheggi nelle vicinanze rende la zona ancora più comoda e vivibile. Questo immobile rappresenta un'ottima opportunità per chi desidera vivere in un ambiente confortevole e ben curato, a pocha distanza dal mare e da tutti i servizi necessari. Contattaci per organizzare una visita e scoprire di persona tutte le potenzialità di questa splendida proprietà. Ci trovate in Viale G. Marconi, 80 ad Alba Adriatica. Potete contattarci ai numeri: Fisso: 0861.1864850 oppure tramite WhatsApp al 347.1498674, registrando il nostro numero potrete accedere al catalogo delle nostre migliori proposte e ricevere aggiornamenti. "Gabetti. E sei già a casa", per gli amici, per la famiglia o da condividere con la persona con cui abbiamo deciso di passare la nostra vita.

Condizioni economiche

Contratto: Vendita
Prezzo: 190'000€
Arredato: Si
Spese condominiali: 13€

Informazioni principali

Tipologia: Trilocale
Città: Alba Adriatica
Superficie: 100 m²
N° locali: 3
N° bagni: 1
N° Camere: 2
Piano: Terra
Cucina: Abitabile
Giardino: Privato

Efficenza energetica

Classe energetica:
Ipe: 0.00 kwm2
Climatizzatore: Si
Anno di costruzione: 2007
Riscaldamento: autonomo

Caratteristiche

Ascensore: Si

Dati inserzione

ID Offrocasa.com: 10999397
Data inserimento: 08/03/2026
Rif. Agenzia: Cod. rif A228VRG
Rif. Agenzia Cod. rif A228VRG

Gabetti

Lungomare Marconi 80 - Alba Adriatica (Teramo)
0861.1864850
Richiedi Info dal form:
Accetto l'Informativa Privacy


Condividi

Gabetti

Lungomare Marconi 80 - Alba Adriatica (Teramo)

Trilocale in Vendita a Alba Adriatica, 190'000€, 100 m², arredato

Chiama
Contatta