Quadrilocale in Vendita a Nettuno, 195'000€, 100 m², con Box

Locali: 4
Bagni: 2
Camere: 3
Piano: Terra
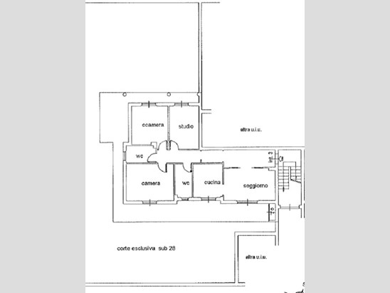
Splendido appartamento recentemente ristrutturato, posto al piano terra la cui superficie è di circa 100 mq. L'immobile è composto da ingresso, soggiorno, cucina abitabile, 3 camere da letto e doppi servizi entrambi finestrati. Costruito nel 2007 vanta di un giardino privato di 130 mq circa e un box auto con cantina annessa. Le condizioni interne sono ottime, l' ambiente si presenta moderno e confortevole. La tripla esposizione lo rende molto luminoso e arieggiato. Il riscaldamento è autonomo a metano, sono presenti infissi in pvc doppio vetro, zanzariere e grate in tutte le finestre. Il mare dista circa 1,5 km e nel raggio di 1 km sono presenti scuole, supermercati, bar e servizi di vario genere. E' possibile visionare l'immobile previo avviso telefonico. Per maggiori informazioni o per prenotare un appuntamento CONTATTACI allo 06.9807365 o al 339.7715860 VISITA LE NOSTRE PAGINE SOCIAL https://www.instagram.com/gabetti.nettuno/ https://www.facebook.com/GabettiNettuno. I nostri consulenti vi affiancheranno fino al rogito notarile. Per la valutazione del proprio immobile, scopri il link: https://valutazioni.gabetti.it/agenzia/nettuno Il Gruppo Gabetti ha allargato i suoi orizzonti. In particolare Gabetti Agency, il network del Gruppo, può proporre un ampio ventaglio di servizi grazie ad una completa conoscenza delle dinamiche dell'intermediazione e delle diverse realtà territoriali acquisita grazie ai 75 anni di presenza nel mercato e alle oltre 700 agenzie capillarmente distribuite in tutta Italia. Gabetti Agency è un partner affidabile con professionisti esperti in grado di proporre soluzioni adatte a soddisfare ogni esigenza.

Condizioni economiche

Contratto: Vendita
Prezzo: 195'000€
Arredato: No
Spese condominiali: 30€

Informazioni principali

Tipologia: Quadrilocale
Città: Nettuno
Superficie: 100 m²
N° locali: 4
N° bagni: 2
N° Camere: 3
Piano: Terra
Box: Si
Cucina: Abitabile
Giardino: Privato

Efficenza energetica

Classe energetica: 2015-F
Ipe: 229.81 kwm2
Anno di costruzione: 2007
Riscaldamento: autonomo

Caratteristiche

Cantina: Si
Videocitofono: Si

Dati inserzione

ID Offrocasa.com: 10998363
Data inserimento: 07/03/2026
Rif. Agenzia: Cod. SAVIO VRG
Rif. Agenzia Cod. SAVIO VRG

Gabetti

via Gramsci 26 - Nettuno (Roma)
06/9807365
Richiedi Info dal form:
Accetto l'Informativa Privacy


Condividi

Gabetti

via Gramsci 26 - Nettuno (Roma)

Quadrilocale in Vendita a Nettuno, 195'000€, 100 m², con Box

Chiama
Contatta