Bilocale in Vendita a Roma, 448'000€, 53 m²

Locali: 2
Bagni: 1
Camere: 1
Piano: 1°
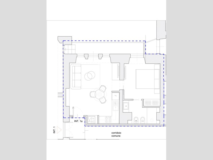
In uno dei quartieri più eleganti di Roma, precisamente in Via Toscana, proponiamo, al primo piano di uno stabile signorile che offre servizio di portineria, la vendita di un appartamento di circa 53 mq in fase di totale ristrutturazione con affacci totalmente interni su un bellissimo giardino. L'immobile, frutto del frazionamento di un immobile più grande, avrà consegna prevista per fine Aprile 2026 e si presenterà finemente ristrutturato con materiali di qualità. Oltrepassato il portone principale si accederà ad uno spazio comune che condurrà all'ingresso dell'appartamento. Entrando la soluzione si aprirà su un luminoso soggiorno con angolo cottura e accesso al balcone. Proseguendo sulla destra, si accederà alla spaziosa camera da letto con bagno en-suite, anch'essa dotata di uscita sul balcone; Andranno a completare la proprietà una pratica zona lavanderia ed un comodo soppalco. Gli impianti idraulico, elettrico e di condizionamento saranno a norma, infissi in pvc bianco/doppio-vetro e pavimentazione in parquet in rovere massello. L'impianto di riscaldamento sarà sia elettrico che condominiale con contabilizzatori di calore, predisposizione dell'impianto di aria condizionata del tipo "a split". La posizione in cui si colloca l'immobile è strategica e centrale, vicino tutte le attività commerciali e di trasporto pubblico. Questo bilocale è un'ottima opportunità abitativa, ideale per chi cerca comodità e desidera vivere in una zona residenziale, tranquilla e ben servita. LE PRESENTI INDICAZIONI E/O PLANIMETRIE E RENDERING SONO PURAMENTE INDICATIVE E NON COSTITUISCONO ELEMENTO CONTRATTUALE. ATTI SOGGETTI AD IMPOSTA DI REGISTRO ED ESENTI DA IVA.

Condizioni economiche

Contratto: Vendita
Prezzo: 448'000€
Arredato: No
Spese condominiali: 70€
Libero: Si

Informazioni principali

Tipologia: Bilocale
Città: Roma
Superficie: 53 m²
N° locali: 2
N° bagni: 1
N° Camere: 1
Piano:
Cucina: Angolo Cottura

Efficenza energetica

Classe energetica:
Anno di costruzione: 1930

Dati inserzione

ID Offrocasa.com: 10998358
Data inserimento: 07/03/2026
Rif. Agenzia: Cod. rif 3299904VRG
Rif. Agenzia Cod. rif 3299904VRG

Professionecasa

Via Alessandria 99 - Roma
06/83964319
Richiedi Info dal form:
Accetto l'Informativa Privacy


Condividi

Professionecasa

Via Alessandria 99 - Roma

Bilocale in Vendita a Roma, 448'000€, 53 m²

Chiama
Contatta