Trilocale in Vendita a Borgio Verezzi, 370'000€, 99 m²

Locali: 3
Bagni: 1
Camere: 2
Piano: 1
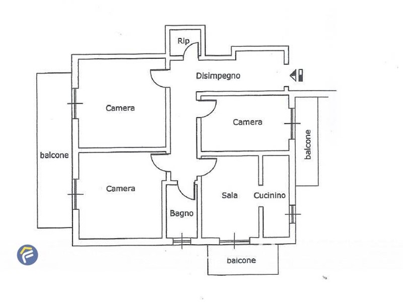
QUADRILOCALE RITRUTTURATO CON POSSIBILITA' DI DOPPI SERVIZI! Nel cuore di Borgio Verezzi, al primo piano di una palazzina di quattro piani totali, proponiamo in vendita ampio quadrilocale recentemente ristrutturato. L'ingresso si apre su un ampio soggiorno con balconcino, composto poi da due camere da letto collegate da una spaziosa balconata, un accogliente salotto con angolo cottura affacciato su un grazioso balcone, un bagno finestrato ed a completare un comodo ripostiglio, con possibilità di realizzare un secondo bagno. Il sistema di riscaldamento è autonomo, permettendo una gestione indipendente delle temperature interne e delle basse spese di gestione. L'immobile viene proposto non arredato, offrendo così la libertà di personalizzare gli spazi secondo il proprio stile. Contattaci allo 019.9250147 o per email borgioverezzi@fondocasa.com per maggiori informazioni e per fissare il tuo appuntamento!

Condizioni economiche

Contratto: Vendita
Prezzo: 370'000€
Libero: Si

Informazioni principali

Tipologia: Trilocale
Città: Borgio Verezzi
Superficie: 99 m²
N° locali: 3
N° bagni: 1
N° Camere: 2
Piano: 1

Efficenza energetica

Classe energetica:
Condizioni stabile: Molto buono
Riscaldamento: Autonomo

Dati inserzione

ID Offrocasa.com: 10995825
Data inserimento: 05/03/2026
Rif. Agenzia: F156-820
Rif. Agenzia F156-820

Fondocasa

Via Matteotti 148 - Borgio Verezzi (Savona)
019.9250147
Richiedi Info dal form:
Accetto l'Informativa Privacy


Condividi

Fondocasa

Via Matteotti 148 - Borgio Verezzi (Savona)

Trilocale in Vendita a Borgio Verezzi, 370'000€, 99 m²

Chiama
Contatta