Trilocale in Vendita a Roma, 155'000€, 85 m²

Locali: 3
Bagni: 1
Camere: 2
Piano: 1
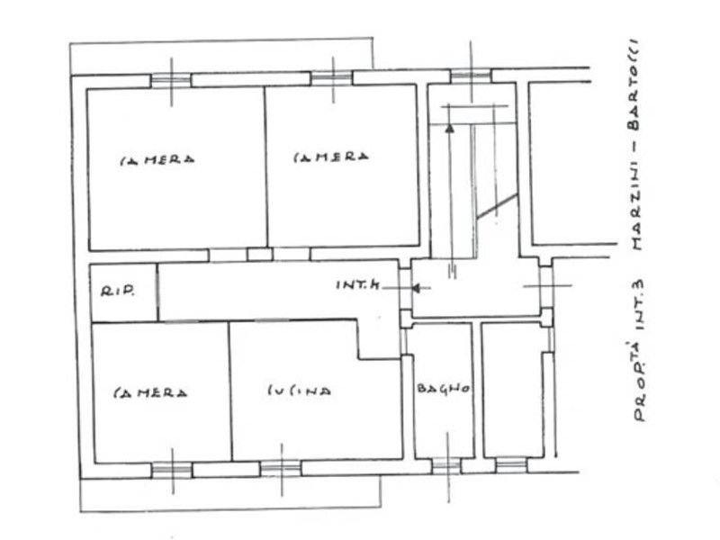
L'immobiliare.com propone in Via Pietro Santo Bartoli - quartiere Torre Angela -, la vendita di un appartamento posto al 1° piano di un palazzo degli anni Ottanta in buone condizioni. La casa ha una superficie interna di circa 85 mq oltre 2 balconi ed è così distribuita: ingresso, soggiorno, 2 camere da letto, cucina abitabile, servizio e ripostiglio. L'esposizione è doppia: Nord e Sud. Si presenta completamente da ristrutturare. Presente anche un posto auto condominiale all'interno del cortile. La richiesta economica è di € 155.000,00

Condizioni economiche

Contratto: Vendita
Prezzo: 155'000€
Arredato: Non arredato
Spese condominiali: 70€
Libero: Si

Informazioni principali

Tipologia: Trilocale
Città: Roma
Superficie: 85 m²
N° locali: 3
N° bagni: 1
N° Camere: 2
Piano: 1
Esposizione: Sud

Efficenza energetica

Classe energetica: G
Anno di costruzione: 1980
Condizioni stabile: Da restaurare
Riscaldamento: Centralizzato con contabilizzatore di calore

Dati inserzione

ID Offrocasa.com: 10995704
Data inserimento: 05/03/2026
Rif. Agenzia: TORRE ANGELA
Rif. Agenzia TORRE ANGELA

L'IMMOBILIARE.COM ROMA PRATI

Via Baldo degli Ubaldi, 111 - Roma
06.3202717
Richiedi Info dal form:
Accetto l'Informativa Privacy


Condividi

L'IMMOBILIARE.COM ROMA PRATI

Via Baldo degli Ubaldi, 111 - Roma

Trilocale in Vendita a Roma, 155'000€, 85 m²

Chiama
Contatta