Appartamento in Vendita a Empoli, 275'000€, 140 m², con Box

Locali: 5
Bagni: 2
Camere: 2
Piano: piano rialzato
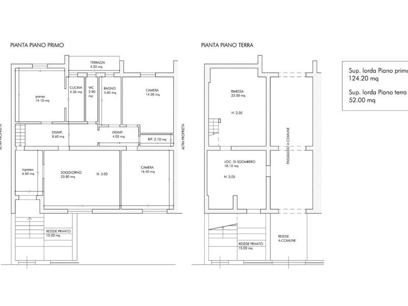
EMPOLI-----------RIF. E 25/097---------------- ZONA POSTE CENTRALI, IN PALAZZINA COMPLETAMENTE RISTRUTTURATA, APPARTAMENTO INDIPENDENTE.---------------------- A due passi dai principali servizi si propone un AMPIO APPARTAMENTO posto al PIANO TERRA RIALZATO ingresso indipendente composto da disimpegno di entrata, ampio soggiorno con terrazzo, sala da pranzo che si apre ad un cucinotto finestrato ed accesso ad un comodo terrazzo tergale; disimpegno notte, due bagni entrambi finestrati, due camere matrimoniali ed un ripostiglio. Dalla zona giorno scala interna che porta ad un locale accessorio e ad una rimessa per un totale di circa mq. 40 utili. OTTIMA ZONA LIBERO EURO 275 MILA Trattabili

Condizioni economiche

Contratto: Vendita
Prezzo: 275'000€
Prezzo trattabile: si

Informazioni principali

Tipologia: Appartamento
Città: Empoli
Superficie: 140 m²
N° locali: 5
N° bagni: 2
N° Camere: 2
Piano: piano rialzato
Box: si

Efficenza energetica

Classe energetica: In attesa di certificazione
Anno di costruzione: 1968
Ristrutturato: no

Dati inserzione

ID Offrocasa.com: 10994439
Data inserimento: 04/03/2026
Rif. Agenzia: 1398006/421/E 26/023
Rif. Agenzia 1398006/421/E 26/023

GROUP IMMOBILIARE di Casini Lorenzo

Piazza Piazza Gramsci, 39 - Empoli (Firenze)
057174703
Richiedi Info dal form:
Accetto l'Informativa Privacy


Condividi

GROUP IMMOBILIARE di Casini Lorenzo

Piazza Piazza Gramsci, 39 - Empoli (Firenze)

Appartamento in Vendita a Empoli, 275'000€, 140 m², con Box

Chiama
Contatta