Trilocale in Vendita a Belluno, 85 m², arredato, con Box

Locali: 3
Bagni: 1
Camere: 2
Piano: 3°
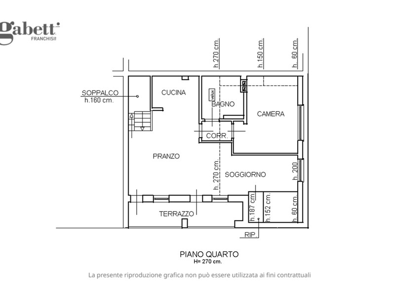
BL-15 Proponiamo in vendita nel cuore del Nevegal un'interessante soluzione disposta su due livelli, ideale come seconda casa in montagna o come investimento per locazioni turistiche. L'ingresso si trova al piano terzo e conduce all'abitazione che si sviluppa principalmente al piano quarto, dove si apre una luminosa zona giorno con accesso al terrazzo panoramico affacciato direttamente sugli impianti sciistici. La distribuzione interna è funzionale e ben organizzata: l'area living può essere facilmente adibita a seconda camera o studio, a seconda delle esigenze, ed è collegata tramite corridoio alla camera matrimoniale e al bagno. Gli spazi risultano ben sfruttati e versatili, adatti sia a un utilizzo personale sia a una messa a reddito. Completa la proprietà un garage privato, elemento particolarmente comodo in zona, e la presenza di pannelli fotovoltaici che rappresentano un valore aggiunto in termini di efficienza energetica e contenimento dei costi di gestione. Una soluzione che unisce posizione strategica, vista panoramica e comfort, perfetta per chi desidera vivere la montagna con praticità e qualità.

Condizioni economiche

Contratto: Vendita
Prezzo: Prezzo su richiesta
Arredato: Si
Spese condominiali: 150€
Libero: Si

Informazioni principali

Tipologia: Trilocale
Città: Belluno
Superficie: 85 m²
N° locali: 3
N° bagni: 1
N° Camere: 2
Piano:
Box: Si
Cucina: Abitabile
Giardino: Comune

Efficenza energetica

Classe energetica: 2015-E
Ipe: 163.48 kwm2
Anno di costruzione: 1976
Riscaldamento: centralizzato

Caratteristiche

Cantina: Si
Ascensore: Si

Dati inserzione

ID Offrocasa.com: 10992522
Data inserimento: 28/02/2026
Rif. Agenzia: BL-15VRG
Rif. Agenzia BL-15VRG

Immobiliare Nordest Srl

Via Manin 71 - Portogruaro (Venezia)
0421276631
Richiedi Info dal form:
Accetto l'Informativa Privacy


Condividi

Immobiliare Nordest Srl

Via Manin 71 - Portogruaro (Venezia)

Trilocale in Vendita a Belluno, 85 m², arredato, con Box

Chiama
Contatta