Quadrilocale in Vendita a Legnano, 339'000€, 131 m², con Box

Locali: 4
Bagni: 2
Camere: 2
Piano: 3°
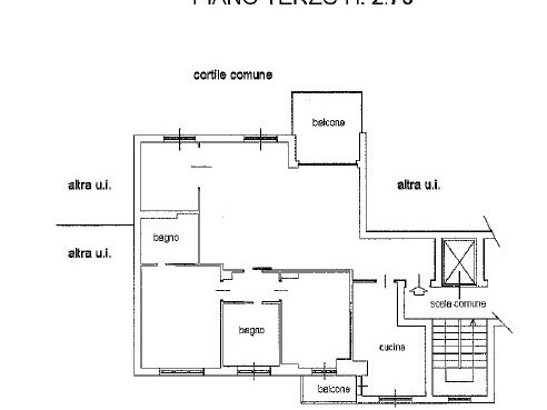
Via Venegoni. Nelle immediate vicinanze della stazione ferroviaria e del centro cittadino, al terzo e penultimo piano, in gradevole contesto immobiliare, proponiamo in vendita un meraviglioso quadrilocale di 125 mq completamente ristrutturato a nuovo e dotato di finiture di eccellenza. L'appartamento è composto da, un ampio ingresso disimpegnato che conduce in un'elegante e moderno salone di generose dimensioni, affacciato direttamente su un terrazzo che ospita un piccolo salotto estivo; cucina abitabile, ben rifinita e dotata di un balcone di servizio, oltre ad uno studio attrezzato. Il disimpegno notte porta a due ampie camere da letto, ad un grande bagno finestrato con doccia e vasca. La spaziosa camera matrimoniale è dotata di bagno privato con doccia walk in. La qualità dei prodotti scelti nella recente ristrutturazone, impreziosisce l'immobile insieme alle altre dotazioni come: l'impianto di condizionamento e l'impianto di allarme. Annessi all'alloggio, la cantina e due box singoli di 15 mq cadauno.

Condizioni economiche

Contratto: Vendita
Prezzo: 339'000€

Informazioni principali

Tipologia: Quadrilocale
Città: Legnano
Superficie: 131 m²
N° locali: 4
N° bagni: 2
N° Camere: 2
Piano:
Box: Si
Cucina: Abitabile
Giardino: Comune

Efficenza energetica

Classe energetica: 2015-C
Ipe: 189.28 kwm2
Climatizzatore: Si
Anno di costruzione: 1995
Riscaldamento: autonomo

Caratteristiche

Cantina: Si
Ascensore: Si
Videocitofono: Si

Dati inserzione

ID Offrocasa.com: 10991583
Data inserimento: 27/02/2026
Rif. Agenzia: Cod. rif 3297886VRG
Rif. Agenzia Cod. rif 3297886VRG

Professionecasa

Via Macello 2/4 - Legnano (Milano)
0331.455421
Richiedi Info dal form:
Accetto l'Informativa Privacy


Condividi

Professionecasa

Via Macello 2/4 - Legnano (Milano)

Quadrilocale in Vendita a Legnano, 339'000€, 131 m², con Box

Chiama
Contatta