Attico in Vendita a Flero, 395'000€, 135 m², con Box

Locali: 4
Bagni: 2
Camere: 3
Piano: 1°
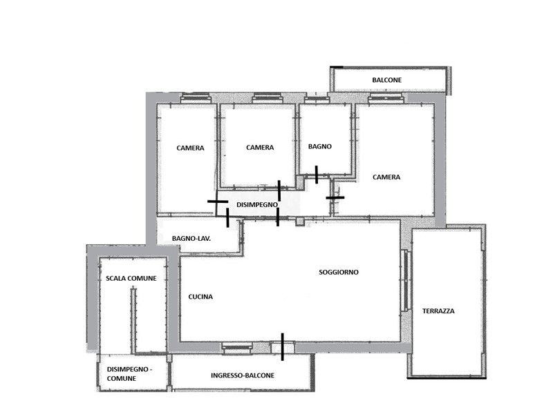
PROPONIAMO IN VENDITA QUADRILOCALE DI NUOVA REALIZZAZIONE CON FINITURE EXTRA - CAPITOLATO. Trattasi di ampio appartamento quadrilocale al piano primo ed ultimo, di testa! con una zona giorno open-space, tre camere da letto, doppio bagno, ampio loggiato accessibile tramite vetrata dal soggiorno, balcone nella zona notte e balcone d'ingresso. Completa la soluzione un'autorimessa doppia al piano interrato completa di spazio aggiuntivo già predisposto a lavanderia. INCLUSE NEL PREZZO FINITURE EXTRA CAPITOLATO: parquet in rovere in tutti gli ambienti, doccia walk-in, split ad alta efficienza energetica per l'impianto di raffrescamento, impianto d'allarme già istallato e basculante con sezionale elettrica e addolcitore dell'acqua. L'impiantistica è di ottimo livello e garantisce la collocazione energetica in classe A3/A4. L'intervento nasce con l'obiettivo di offrire abitazioni di alta qualità, sia dal punto di vista costruttivo che energetico. Consegna a luglio 2026.

Condizioni economiche

Contratto: Vendita
Prezzo: 395'000€
Libero: Si

Informazioni principali

Tipologia: Attico
Città: Flero
Superficie: 135 m²
N° locali: 4
N° bagni: 2
N° Camere: 3
Piano:
Box: Si
Cucina: Abitabile

Efficenza energetica

Classe energetica:
Ipe: 0.00 kwm2
Climatizzatore: Si
Anno di costruzione: 2026
Riscaldamento: autonomo

Caratteristiche

Videocitofono: Si

Dati inserzione

ID Offrocasa.com: 10991501
Data inserimento: 27/02/2026
Rif. Agenzia: Cod. rif 3297550VRG
Rif. Agenzia Cod. rif 3297550VRG

Gabetti

Prossima Apertura - - Rovato (Brescia)
339.5955437
Richiedi Info dal form:
Accetto l'Informativa Privacy


Condividi

Gabetti

Prossima Apertura - - Rovato (Brescia)

Attico in Vendita a Flero, 395'000€, 135 m², con Box

Chiama
Contatta