Trilocale in Vendita a Milano, 1'400'000€, 100 m²

Locali: 3
Bagni: 2
Camere: 2
Piano: Rialzato
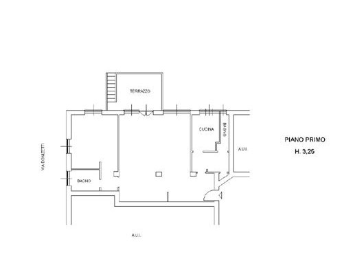
In posizione centralissima e strategica, all'interno di un contesto elegante e perfettamente curato, proponiamo in vendita un nuovissimo bilocale caratterizzato da finiture ricercate e di alto livello.\n\nL'appartamento, particolarmente silenzioso grazie all'affaccio interno, si distingue per una distribuzione degli spazi funzionale e moderna: ampia zona giorno con luminoso soggiorno, cucina abitabile, camera da letto matrimoniale e bagno finestrato. L'ampia metratura consente, all'occorrenza, di ricavare una seconda camera, rendendo l'immobile una soluzione ideale anche per chi necessita di maggiori spazi abitativi. Attualmente la soluzione si presenta come un bilocale.\n\nDalla zona living si accede direttamente al giardino condominiale, uno spazio verde riservato e piacevole, ideale per momenti di relax nel cuore della città.\n\nCompletano la proprietà il servizio di portineria attivo per l'intera giornata e un comodo box auto all'interno dello stabile, un valore aggiunto raro e particolarmente apprezzato in zona.\n\nHai un immobile da vendere o affittare?\nContattaci per una valutazione gratuita, professionale e senza impegno.\nLe metrature, la planimetria ed i dati degli immobili qui pubblicati sono del tutto indicativi e non potranno essere utilizzati come parte integrante in un eventuale contratto di vendita o di locazione delle proprietà. Contattaci: agenzia and quot;Immobili Di Pregio Srl and quot;. Per ulteriori informazioni non esitare a contattarci al numero 02/8900772- cell 3349858315 .

Condizioni economiche

Contratto: Vendita
Prezzo: 1'400'000€

Informazioni principali

Tipologia: Trilocale
Città: Milano
Superficie: 100 m²
N° locali: 3
N° bagni: 2
N° Camere: 2
Piano: Rialzato
Posto auto: Garage

Efficenza energetica

Classe energetica: G
Ristrutturato: Ottimo
Riscaldamento: Centralizzato

Dati inserzione

ID Offrocasa.com: 10989982
Data inserimento: 26/02/2026
Rif. Agenzia: DPI-32
Rif. Agenzia DPI-32

Immobili di Pregio S.r.l.

Foro Buonaparte, 67 - Milano
+39028900772
Richiedi Info dal form:
Accetto l'Informativa Privacy


Condividi

Immobili di Pregio S.r.l.

Foro Buonaparte, 67 - Milano

Trilocale in Vendita a Milano, 1'400'000€, 100 m²

Chiama
Contatta