Appartamento in Vendita a Torino, 267'000€, 130 m²

Locali: 5
Bagni: 2
Camere: 3
Piano: 1°
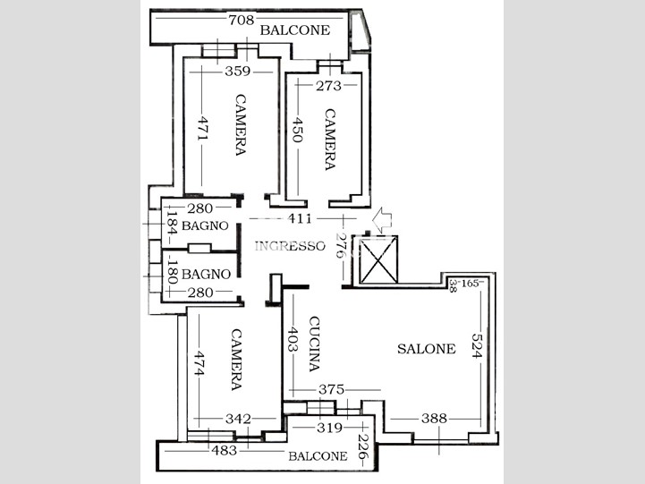
Telefono: 011.32.94.268 SANTA RITA - Le agenzie GABETTI di corso Sebastopoli 243 e corso Agnelli 66 propongono in vendita in BUENOS AIRES, pressi corso Cosenza e via Gorizia, in stabile SIGNORILE anni '70, dotato di servizio di portineria, doppi ascensori e giardino condominiale, ampio appartamento di 4/5 LOCALI di 130 mq ca., con doppi servizi, tripla esposizione ed ampi balconi. COMPOSIZIONE INTERNA: tripla esposizione est/ovest/nord, ingresso, ampia zona giorno comprendente zona pranzo con angolo cottura a vista e soggiorno living zona divani/tv, tre camere, doppi servizi (entrambi finestrati) e due ampi balconi, completa la proprietà la cantina al piano seminterrato; CONDIZIONI INTERNE: ristrutturato; PERCHE' SCEGLIERLO? ? Luminosissimo grazie alla tripla esposizione aperta su aree verdi ed alla presenza di due ampi balconi vivibili; ? contesto condominiale di tipologia signorile edificato negli anni '70, elevato a dieci piani, in ottime condizioni di mantenimento delle parti comuni, dotato di servizio di portierato, doppi ascensori e giardino condominiale; ? posizione tranquilla, residenziale e comodissima a tutti i servizi utili, fronte scuole, ricca di negozi, supermercati, fermate dei principali mezzi pubblici ed aree verdi; ? ristrutturazione curata con materiali di pregio: portoncino blindato, pavimentazioni in splendido marmo nell' ingresso e nella zona giorno, due camere rivestite in parquet ed una in ceramica, servizi rivestiti in gres porcellanato, termoarredi, infissi esterni nuovi in pvc effetto legno con doppio vetro, infissi interni in legno moderni, climatizzatore con quattro split, inferriate di sicurezza e tende sole; SPESE DI RISCALDAMENTO: centralizzato con teleriscaldamento e termovalvole, quota fissa ? 502,92 + consumo effettivo; SPESE DI CONDOMINIO: ? 1245,31 + acqua fredda ed acqua calda a consumo, annui ca.; Classe Energetica C ipe 181,08 kwh/m2 Visita il nostro sito internet: www.gabettisantaritapozzostrada.it Ti è piaciuto il nostro annuncio? Se vuoi vendere il tuo immobile possiamo sfruttarne al massimo le potenzialità! Contattaci al numero 011.32.94.268 e riceverai la valutazione di un PROFESSIONISTA GABETTI le nostre sedi in Torino, Santa Rita, Mirafiori, Pozzo Strada Viberti e Lingotto Traiano: Corso Sebastopoli n. 243/C (fronte Piscina Sebastopoli) Corso Agnelli n. 66 (fronte Sporting) Corso Monte Cucco n. 57

Condizioni economiche

Contratto: Vendita
Prezzo: 267'000€
Spese condominiali: 104€
Libero: Si

Informazioni principali

Tipologia: Appartamento
Città: Torino
Superficie: 130 m²
N° locali: 5
N° bagni: 2
N° Camere: 3
Piano:
Cucina: Abitabile
Giardino: Comune

Efficenza energetica

Classe energetica:
Ipe: 0.00 kwm2
Climatizzatore: Si
Anno di costruzione: 1970
Riscaldamento: centralizzato

Caratteristiche

Cantina: Si
Ascensore: Si

Dati inserzione

ID Offrocasa.com: 10989673
Data inserimento: 25/02/2026
Rif. Agenzia: buenos aires 106VRG
Rif. Agenzia buenos aires 106VRG

Gabetti

Corso Agnelli 66 - Torino
011/359393
Richiedi Info dal form:
Accetto l'Informativa Privacy


Condividi

Gabetti

Corso Agnelli 66 - Torino

Appartamento in Vendita a Torino, 267'000€, 130 m²

Chiama
Contatta