Appartamento in Vendita a Marano di Napoli, 165'000€, 125 m²

Locali: 5
Bagni: 2
Camere: 3
Piano: 3°
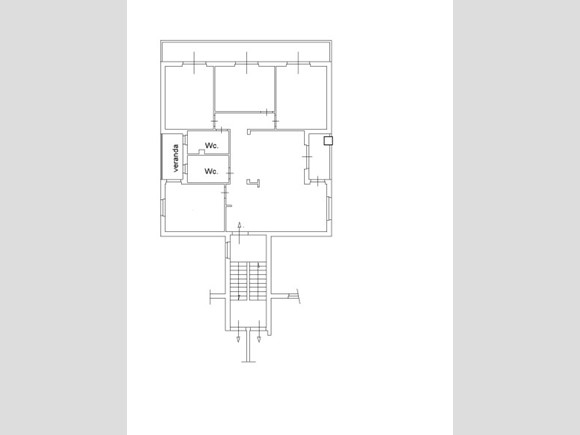
Marano di Napoli - Via del Mare In zona residenziale tranquilla e ben collegata, a pochi chilometri dalla zona ospedaliera, proponiamo in vendita un appartamento di ampia quadratura, ideale per chi è alla ricerca di spazi comodi da personalizzare. La soluzione, di circa 125 mq, è posta al terzo piano senza ascensore e gode di una piacevole doppia esposizione che assicura luminosità e ariosità durante tutto l'arco della giornata. Gli ambienti sono spaziosi e ben distribuiti, arricchiti da un balcone terrazzato verandato, perfetto da vivere come ulteriore spazio relax, oltre ad altri due balconi con affaccio libero che donano ulteriore luce e apertura agli ambienti. Completano la proprietà due posti auto assegnati in area condominiale e un box auto di proprietà, attualmente locato, che rappresenta anche un'interessante opportunità di rendita. L'immobile presenta rifiniture originarie, caratteristica che lo rende ideale per chi desidera ristrutturare e personalizzare gli spazi secondo il proprio gusto e le proprie esigenze. Le immagini pubblicate sono render illustrativi che mostrano una possibile ipotesi di ristrutturazione dell'appartamento, al fine di valorizzarne il potenziale. Soluzione adatta a famiglie o a chi cerca una metratura importante in contesto tranquillo, senza rinunciare alla vicinanza ai principali servizi. Per maggiori informazioni o per fissare una visita, puoi contattarci anche tramite WhatsApp al 392 649 6197. Un nostro consulente sarà sempre disponibile per rispondere alle tue domande. Trovare casa non è stato #MaiCosiFacile! #GabettiMarano

Condizioni economiche

Contratto: Vendita
Prezzo: 165'000€
Arredato: No
Spese condominiali: 50€
Libero: Si

Informazioni principali

Tipologia: Appartamento
Città: Marano di Napoli
Superficie: 125 m²
N° locali: 5
N° bagni: 2
N° Camere: 3
Piano:
Box: Doppio
Cucina: Abitabile

Efficenza energetica

Classe energetica:
Anno di costruzione: 1975
Riscaldamento: autonomo

Dati inserzione

ID Offrocasa.com: 10989652
Data inserimento: 25/02/2026
Rif. Agenzia: MV2168VRG
Rif. Agenzia MV2168VRG

Gabetti

Via F. Baracca, 8 - Marano di Napoli (Napoli)
081/7423468
Richiedi Info dal form:
Accetto l'Informativa Privacy


Condividi

Gabetti

Via F. Baracca, 8 - Marano di Napoli (Napoli)

Appartamento in Vendita a Marano di Napoli, 165'000€, 125 m²

Chiama
Contatta