Quadrilocale in Vendita a Macerata, 205'000€, 94 m²

Locali: 4
Bagni: 2
Piano: 2°
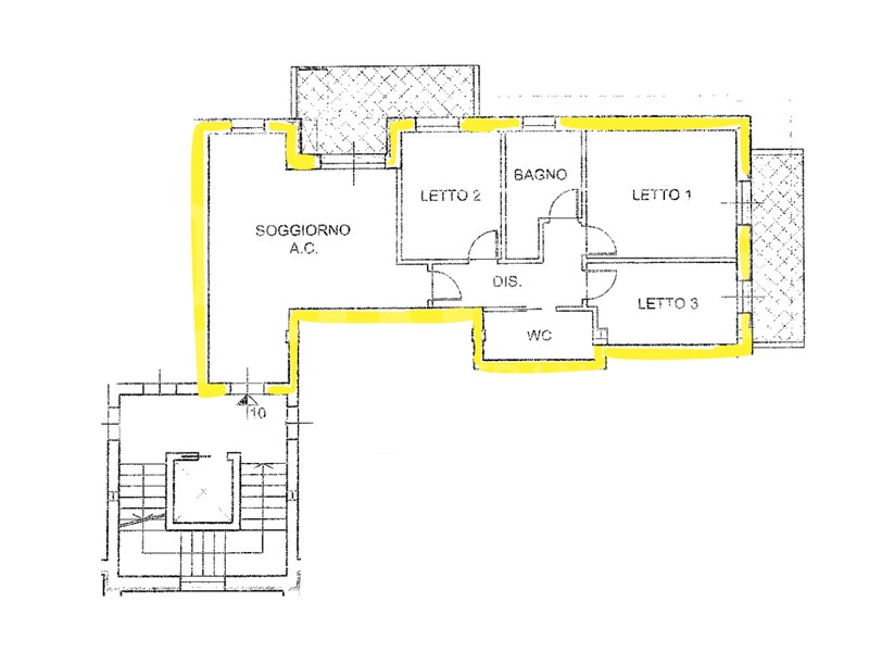
ZONA CASETTE VERDINI: Rif: 3110 Appartamento al 2°piano di NUOVA COSTRUZIONE IN PRONTA CONSEGNA. In zona Casette Verdini l'Agenzia Immobiliare Gabetti di Macerata propone in vendita splendido appartamento di 93,5 mq. L'appartamento, ubicato al 2°piano, è composto da un luminoso soggiorno con angolo cottura, 3 camere da letto, un disimpegno e 2 bagni. Completano la proprietà 2 balconi, uno di 10 mq accessibile dal soggiorno e uno di 8 mq accessibile da due delle tre camere da letto. Per chi necessita di ulteriori spazi, la proprietà offre la possibilità di acquistare garage di varie metrature al piano S1, accessibili da rampa, garantendo così comodità e sicurezza per il proprio veicolo. In alternativa sono presenti alcuni parcheggi fronte strada e dietro l'immobile. Questo immobile è pronto per la consegna, ma personalizzabile secondo i propri gusti ed esigenze. Questa soluzione di recente costruzione è collocata all'interno di una palazzina antisismica in acciaio, garantendo così una miglior resistenza sismica, durabilità, leggerezza e sostenibilità. La classe energetica A+++ e l'impianto fotovoltaico consentono un risparmio significativo sulle bollette energetiche, contribuendo anche alla sostenibilità ambientale. L'appartamento è dotato di riscaldamento autonomo, a pavimento, elettrico, pompa di calore, serrandine elettriche in acciaio, predisposizione per le zanzariere e allarme volumetrico. Dotato di infissi in legno laccato e doppi vetri, questi garantiscono un'ottimo isolamento acustico. La posizione dell'appartamento è strategica, con la presenza di caffè, ristoranti e altri servizi nelle vicinanze. Non lasciarti sfuggire questa occasione unica di acquistare un appartamento di qualità superiore, pronto per essere abitato e goduto fin da subito. Contattaci oggi stesso per organizzare una visita allo 0733-265081, o inviaci una mail a macerata@gabetti.it, o vienici a trovare presso la nostra agenzia in Via G. Carducci n.17 a Macerata.

Condizioni economiche

Contratto: Vendita
Prezzo: 205'000€

Informazioni principali

Tipologia: Quadrilocale
Città: Macerata
Superficie: 94 m²
N° locali: 4
N° bagni: 2
Piano:

Efficenza energetica

Classe energetica:
Anno di costruzione: 0

Dati inserzione

ID Offrocasa.com: 10989485
Data inserimento: 25/02/2026
Rif. Agenzia: Cod. rif 3110VRG
Rif. Agenzia Cod. rif 3110VRG

Gabetti

via Carducci, 17 - Macerata
0733/265081
Richiedi Info dal form:
Accetto l'Informativa Privacy


Condividi

Gabetti

via Carducci, 17 - Macerata

Quadrilocale in Vendita a Macerata, 205'000€, 94 m²

Chiama
Contatta