Bilocale in Vendita a San Giuliano Terme, zona Madonna Dell'acqua, 142'000€, 55 m²

Locali: 2
Bagni: 1
Camere: 1
Piano: piano rialzato
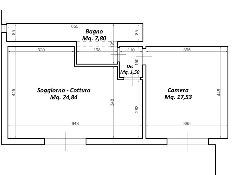
Madonna dell'acqua : Nostra esclusiva !!! Appartamento nuovo in corso di ristrutturazione !!! Proponiamo nuova soluzione a due passi dal centro di Pisa posizionato in zona strategica residenziale . Si tratta di un ampio Appartamento bilocale di circa 55 mq netti che verrà consegnato completamente ristrutturato . Ingresso indipendente , soggiorno con angolo cottura , zona giorno/tv , disimpegno , camera matrimoniale , bagno con doccia e finestra. Facilità di parcheggio nelle vicinanze. Ideale per giovane coppia o ad uso investimento , tempi di consegna Dicembre 2026. Per info e visite contattare l'agenzia.

Condizioni economiche

Contratto: Vendita
Prezzo: 142'000€

Informazioni principali

Tipologia: Bilocale
Città: San Giuliano Terme
Zona: Madonna Dell'acqua
Superficie: 55 m²
N° locali: 2
N° bagni: 1
N° Camere: 1
Piano: piano rialzato

Efficenza energetica

Classe energetica: G
Ipe: 175,00 kwm2
Anno di costruzione: 1970

Dati inserzione

ID Offrocasa.com: 10989046
Data inserimento: 25/02/2026
Rif. Agenzia: 1396568/1457/AB1006
Rif. Agenzia 1396568/1457/AB1006

LA CASA PER TE

Via Via Provinciale Vicarese , 6, 2 - San Giuliano Terme (Pisa)
3395369933
Richiedi Info dal form:
Accetto l'Informativa Privacy


Condividi

LA CASA PER TE

Via Via Provinciale Vicarese , 6, 2 - San Giuliano Terme (Pisa)

Bilocale in Vendita a San Giuliano Terme, zona Madonna Dell'acqua, 142'000€, 55 m²

Chiama
Contatta