Bilocale in Vendita a Marano Marchesato, 55'000€, 70 m², arredato

Locali: 2
Bagni: 1
Camere: 1
Piano: Terra
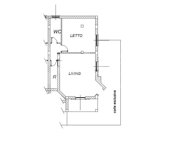
Proponiamo in vendita accogliente appartamento con 2 locali e 1 bagno, situato nel comune di Marano Marchesato (CS). Con una superficie di 70 mq, questo immobile arredato offre un'atmosfera calda e accogliente grazie al camino presente nel soggiorno living. Dotato di un giardino privato, di circa 50 mq, offre spazi verdi ideali per momenti di relax all'aria aperta. L'appartamento dispone di videocitofono e citofono per garantire sicurezza e privacy. L'impianto di riscaldamento assicura comfort in ogni stagione, mentre il ripostiglio offre praticità e spazio di archiviazione. Le condizioni interne sono impeccabili. Con una camera da letto e una cucina a vista, questo immobile si sviluppa su un unico livello, rendendolo comodo e funzionale . Ideale per chi cerca un rifugio tranquillo e ben curato, questo appartamento rappresenta un'ottima opportunità abitativa. Agenzia Gabetti Franchising Via Carlo Bilotti 10 - 87036 Rende Tel. 0984659552Cell. 3288250228 (GIOVANNI) email rende@gabetti.it

Condizioni economiche

Contratto: Vendita
Prezzo: 55'000€
Arredato: Si

Informazioni principali

Tipologia: Bilocale
Città: Marano Marchesato
Superficie: 70 m²
N° locali: 2
N° bagni: 1
N° Camere: 1
Piano: Terra
Box: Doppio
Cucina: Abitabile
Giardino: Comune

Efficenza energetica

Classe energetica:
Anno di costruzione: 0
Riscaldamento: autonomo

Caratteristiche

Videocitofono: Si

Dati inserzione

ID Offrocasa.com: 10986670
Data inserimento: 21/02/2026
Rif. Agenzia: Cod. rif 3296377VRG
Rif. Agenzia Cod. rif 3296377VRG

Gabetti

Via Carlo Bilotti 10 - Rende (Cosenza)
0984/1863870
Richiedi Info dal form:
Accetto l'Informativa Privacy


Condividi

Gabetti

Via Carlo Bilotti 10 - Rende (Cosenza)

Bilocale in Vendita a Marano Marchesato, 55'000€, 70 m², arredato

Chiama
Contatta