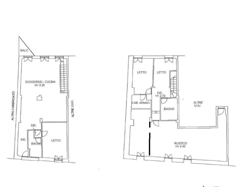
Quadrilocale in Vendita a Mantova, 495'000€, 220 m²

Locali: 4
Bagni: 2
Camere: 3
Piano: Soppalco
Mantova Centro No ZTL. Immagina di svegliarti ogni mattina in un accogliente nido urbano che si affaccia su Mantova come se fosse un frammento di Venezia. Questo delizioso appartamento vanta ampi spazi luminosi che abbracciano il tuo benessere e la tua tranquillità. Il terrazzino intimo, un rifugio di pace, ti offre un romantico scorcio della città unico, dove il tempo sembra fermarsi per te. Vivere qui è un'esperienza di eleganza e comfort senza pari, un connubio perfetto tra la magia del passato e la modernità contemporanea. Entra in questo incantevole mondo e lasciati conquistare dalla bellezza senza tempo di questa dimora. Vivere qui è abbracciare serenità e l'esclusività in ogni dettaglio. -Localizzazione conveniente: Situato in una posizione strategica e funzionale nel centro storico di Mantova,l'appartamento offre un accesso facile e veloce ai servizi essenziali, come negozi, ristoranti, trasporti pubblici e strutture ricreative.

Condizioni economiche

Contratto: Vendita
Prezzo: 495'000€
Arredato: Non arredato
Spese condominiali: 100€
Libero: Si

Informazioni principali

Tipologia: Quadrilocale
Città: Mantova
Superficie: 220 m²
N° locali: 4
N° bagni: 2
N° Camere: 3
Piano: Soppalco
Cucina: Si

Efficenza energetica

Classe energetica: D
Ipe: 75,49 kwh_m2
Condizioni stabile: Restaurato
Riscaldamento: Centralizzato con contabilizzatore di calore

Dati inserzione

ID Offrocasa.com: 10986520
Data inserimento: 21/02/2026
Rif. Agenzia: 5473
Rif. Agenzia 5473

Iside Casa srl

Via XX Settembre, 1 - Mantova
0376225858
Richiedi Info dal form:
Accetto l'Informativa Privacy


Condividi

Iside Casa srl

Via XX Settembre, 1 - Mantova

Quadrilocale in Vendita a Mantova, 495'000€, 220 m²

Chiama
Contatta