Bilocale in Vendita a San Giuliano Terme, zona San Martino a Ulmiano, 150'000€, 52 m²

Locali: 2
Bagni: 1
Camere: 1
Piano: piano terra
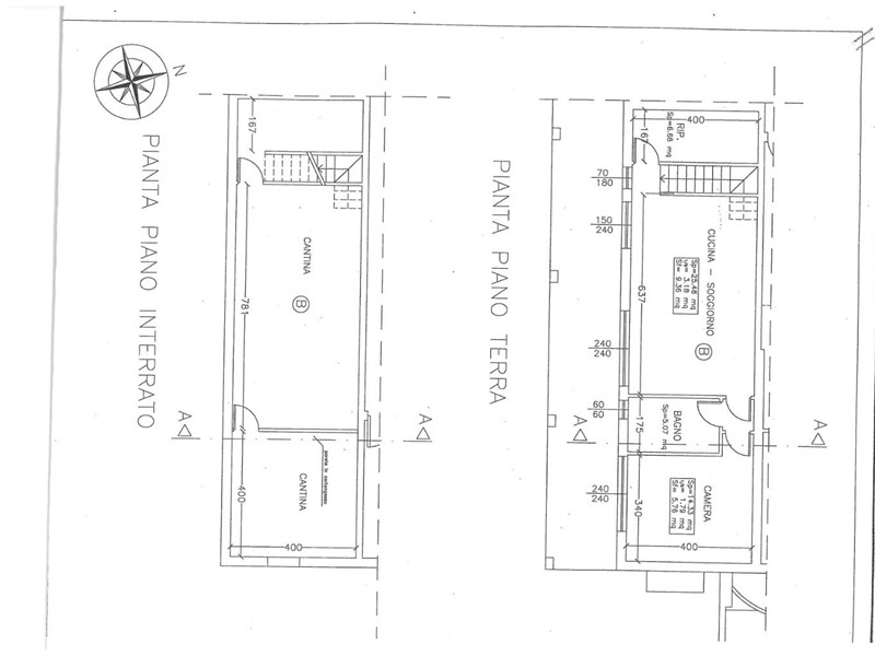
San Martino Ulmiano: in zona verde e residenziale, In complesso di recente costruzione, appartamenti su due livelli così composti; Al piano terra, da ingresso indipendente si accede nel soggiorno con cottura a vista, camera matrimoniale, bagno finestrato con doccia e comodo ripostiglio-lavanderia. Al piano seminterrato grande taverna adatta a molteplici soluzioni. Completa la proprietà un posto auto esclusivo. Classe Energetica "D" Ottima soluzione sia per abitare in un piacevole contesto, che per investire. Rif. p1029v

Condizioni economiche

Contratto: Vendita
Prezzo: 150'000€

Informazioni principali

Tipologia: Bilocale
Città: San Giuliano Terme
Zona: San Martino a Ulmiano
Superficie: 52 m²
N° locali: 2
N° bagni: 1
N° Camere: 1
Piano: piano terra
Posto auto: 1

Efficenza energetica

Classe energetica: D
Anno di costruzione: 2008
Ristrutturato: si

Dati inserzione

ID Offrocasa.com: 10986185
Data inserimento: 21/02/2026
Rif. Agenzia: 1396033/1123/p1029v
Rif. Agenzia 1396033/1123/p1029v

PREMIUM Immobiliare

Via Via Cavour,, 11 - Pisa
050970446
Richiedi Info dal form:
Accetto l'Informativa Privacy


Condividi

PREMIUM Immobiliare

Via Via Cavour,, 11 - Pisa

Bilocale in Vendita a San Giuliano Terme, zona San Martino a Ulmiano, 150'000€, 52 m²

Chiama
Contatta